
ohne-makler.net - Immobilien selbst vermarkten
Privat von Frau Welsch
Kontaktiere den Anbieter schriftlich, es ist keine Telefonnummer hinterlegt.
Preise & Kosten
nicht in Warmmiete enthalten
Kaution
3.456,00
Warum sehe ich diese Anzeige? – Du siehst diese Anzeige basierend auf Ihrer Navigation auf unserer Website und den Suchkriterien, die du verwendet hast.
Lage
Das Objekt liegt in dem schönen Ortsteil Buchloe-Honsolgen. Sie haben alle Vorzüge vom Wohnen im Grünen, sind aber dennoch gut an das Zentrum von Buchloe, sowie die A96 angebunden. Die Autobahnanschlussstelle A96/Buchloe Ost ist in ca. 5 Minuten erreichbar. Ideal für Pendler nach München oder Augsburg.
Anbindung:
-...
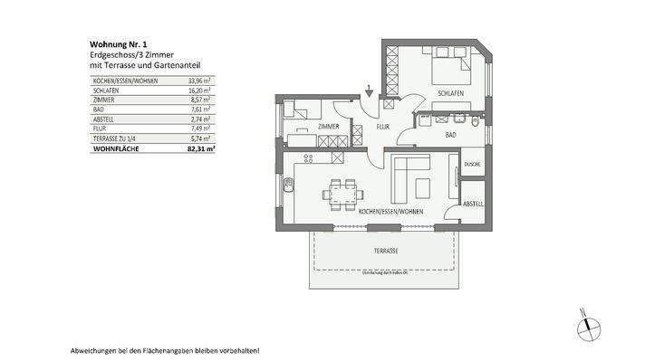
Die Wohnung
Wohnungslage
Erdgeschoss
Bezug
01.02.2026
Wohnanlage
Energie & Heizung
Warum sehe ich diese Anzeige? – Du siehst diese Anzeige basierend auf Ihrer Navigation auf unserer Website und den Suchkriterien, die du verwendet hast.
Energieausweistyp
Bedarfsausweis
Gebäudetyp
Wohngebäude
Effizienzklasse
A+
Endenergiebedarf
24,00 kWh/(m²·a)
Weitere Energiedaten
Energieträger
Elektro
Heizungsart
Zentralheizung
Details
Objektbeschreibung
Die Wohnung im Erdgeschoss zeichnet sich durch eine gehobene Innenausstattung aus. Zu dem Apartment zählen drei schöne Zimmer und eine große überdachte Terrasse mit Gartenanteil. Der offene Wohn-/Koch- und Essbereich lädt zum gemeinsamen Kochen und Verweilen ein. Im schönen Garten können Sie den Tag entspannt ausklingen...
Ausstattung
Terrasse, Garten, Keller
Bemerkungen:
Ausstattung im Überblick
- Massivbauweise
- Fußbodenheizung
- Heizung: Luft-Wasser-Wärmepumpe
- Wasser-Enthärtungsanlage
- Türsprechanlage mit Kamera
- Lüftungsanlage mit Wärmerückgewinnung (dezentral)
- Holz-Isolierglasfenster aus Lärchenholz mit...
Preisinformation
1 Carportplatz, Miete: 40,00 EUR
1 Stellplatz, Miete: 40,00 EUR
Nettokaltmiete: 1.152,00 EUR
Weitere Informationen
Sonstiges
Heizungsart: Zentralheizung
Energieträger: Strom
Sie haben Interesse?
Bitte senden Sie uns eine schriftliche Nachricht mit Ihren Kontaktdaten und ein paar kurzen Informationen zu Ihrer Person.
Für eine Bewerbung um eine Mietwohnung bitten wir Sie, folgende Unterlagen (in Kopie)...
Anbieter der Immobilie
ohne-makler.net - Immobilien selbst vermarkten
Humboldtstr. 25 A, 21509 Glinde
Privat von Frau Welsch
Dein Ansprechpartner
Kontaktiere den Anbieter schriftlich, es ist keine Telefonnummer hinterlegt.
Online-ID: 2me6d5e
Referenznummer: 408776
Finde Angebote wie dieses
Hier geht es zu unserem Impressum, den Allgemeinen Geschäftsbedingungen, den Hinweisen zum Datenschutz und nutzungsbasierter Online-Werbung.