

Main Estate Immobilien GmbH
Herr Philipp Hainlein
+49 ···
Nr. anzeigenPreise & Kosten
Provision für Käufer
3,57 % inkl. MwSt.
Käuferprovision beträgt 3,57 % (inkl. MwSt.) des beurkundeten Kaufpreises
Lage
Das angebotene Objekt befindet sich in zentraler Lage von Neu-Isenburg, einem der attraktivsten Standorte von Neu-Isenburg und sehr beliebt im Rhein-Main-Gebiet.
Mit seiner erstklassigen Wohnlage sind die Autobahnen A3, A5 und A661 in 5-7 sowie die Innenstadt von Frankfurt am Main und der internationale Flughafen in...
Das Haus
Kategorie
Mehrfamilienhaus
Baujahr
1990
Bezug
sofort
Derzeitige Nutzung
vermietet
Energie & Heizung
Warum sehe ich diese Anzeige? – Du siehst diese Anzeige basierend auf Ihrer Navigation auf unserer Website und den Suchkriterien, die du verwendet hast.
Energieausweistyp
Verbrauchsausweis
Gebäudetyp
Wohngebäude
Baujahr laut Energieausweis
1990
Wesentliche Energieträger
Gas
Gültigkeit
01.02.2021 bis 31.01.2031
Effizienzklasse
E
Endenergieverbrauch
131,00 kWh/(m²·a) - Warmwasser enthalten
Weitere Energiedaten
Haustyp
Massivhaus
Energieträger
Gas
Heizungsart
Zentralheizung
Details
Objektbeschreibung
Exklusives Wohn- und Geschäftshaus mit attraktiver Rendite in begehrter Lage von Neu-Isenburg
Potentiale erkennen - Chancen nutzen!
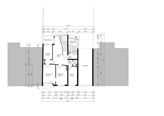
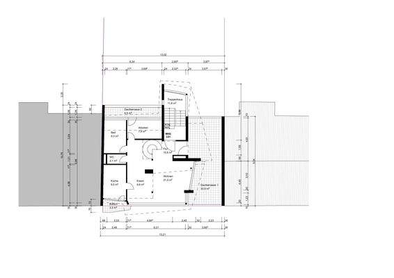
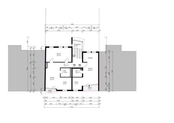
Gebäude und Grundstück
Die angebotene Liegenschaft bietet sagenhafte ca. 640,00 m² Netto-Raumfläche und somit vielfältige Nutzungsmöglichkeiten sowie einzigartige...
Ausstattung
- Wohnlage: Zentrum von Neu-Isenburg
- Gebäude: Wohn- und Geschäftshaus
- Nutzung: Selbstnutzer- und Renditeobjekt
- Renditepotential: hoch
- Grundstücksfläche gesamt: ca. 358,00 m²
- Netto-Raumfläche: ca. 640,10 m²
- Wohnfläche: ca. 319,40 m²
- Nutzfläche (gewerblich genutzt): ca. 140,70 m²
-...
Preisinformation
8 Stellplätze
Ist-Mieteinnahmen pro Jahr: 69.672,00 EUR
Weitere Informationen
Sonstiges
GELDWÄSCHE: Als Immobilienmaklerunternehmen ist die Main Estate Immobilien GmbH nach § 2 Abs. 1 Nr. 14 und § 11 Abs. 1, 2 Geldwäschegesetz (GwG) dazu verpflichtet, bei der Begründung einer Geschäftsbeziehung bzw. sobald ein ernsthaftes Interesse an der Durchführung des Immobilienkaufvertrages besteht, die...
Dokumente
Anbieter der Immobilie

Online-ID: 2me7j5w
Referenznummer: 132811861#xE0oP
Finde Angebote wie dieses
Hier geht es zu unserem Impressum, den Allgemeinen Geschäftsbedingungen, den Hinweisen zum Datenschutz und nutzungsbasierter Online-Werbung.