
RE/MAX Gruppe PI
Herr Philipp Szabo
026 ···
Nr. anzeigenPreise & Kosten
Provision für Käufer
3.00 % zzgl. MwSt.
Das Haus
Kategorie
Einfamilienhaus
Baujahr
ca. 1967
Bezug
sofort
Energie & Heizung
Warum sehe ich diese Anzeige? – Du siehst diese Anzeige basierend auf Ihrer Navigation auf unserer Website und den Suchkriterien, die du verwendet hast.
Heizwärmebedarf (HWB)
237,40 kWh/(m²·a)
Gesamtenergieeffizienz (fGEE)
3,21
Weitere Energiedaten
Haustyp
Massivhaus
Energieträger
Gas
Heizungsart
Zentralheizung
Details
Objektbeschreibung
Objektbeschreibung
Dieses vielseitige Wohn- und Gewerbeobjekt am Rande von Hornstein bietet eine ideale Kombination aus großzügigem Wohnraum und funktionaler Gewerbefläche - ideal für Selbstständige, Handwerksbetriebe oder Familien, die Wohnen und Arbeiten unter einem Dach vereinen möchten.
Das Gebäude wurde...
Weitere Informationen
Stichworte
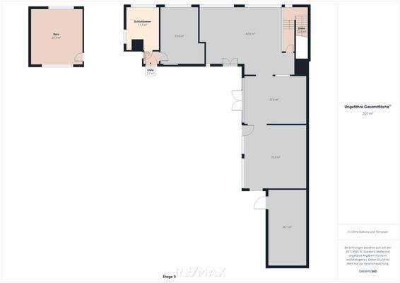
Anzahl der Schlafzimmer: 7, Anzahl der Badezimmer: 1, Anzahl der separaten WCs: 1, Anzahl der Wohneinheiten: 2, Bundesland: Burgenland, 3 Etagen, Stadtrandlage
Sonstiges/Wohnen: Einliegerwohnung
Dokumente
Anbieter der Immobilie
RE/MAX Gruppe PI
Hauptplatz 20a, 7100 NEUSIEDL AM SEE
Online-ID: 2me8k5c
Referenznummer: 2275/7611
Finde Angebote wie dieses
Günstige Immobilienfinanzierung einfach online berechnen
Persönliches Angebot berechnenWarum sehe ich diese Werbung? – Du siehst diese Werbung basierend auf Deiner Navigation auf unserer Website und der von Dir verwendeten Suchkriterien.
Diese Werbung wird bezahlt von durchblicker
Werbung melden
Hier geht es zu unserem Impressum, den Allgemeinen Geschäftsbedingungen, den Hinweisen zum Datenschutz und nutzungsbasierter Online-Werbung.