

Studio zum Kauf490000 €5.765 €/m²3 Zimmer • 85 m² • EG
490000 €
5.765 €/m²
3 Zimmer • 85 m² • EG
Wohnungen in Strandnähe mit Pool in Cubelles Barcelona
Merkmale
- Bezug: Spain Homes
- Erdgeschoss
- Personenaufzug
- Waschraum
- voll klimatisiert
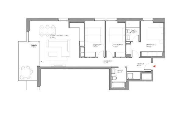
Grundrisse
Grundrisse
1 / 3
Realisiere Dein Projekt
Bausubstanz und Energie
Der Anbieter hat keine Informationen zum Energieverbrauch bereit gestellt.
- Baujahr2026
Preisdetails
Kaufpreis
490000 €
5.764,71 €/m²
Provision für Käufer
Bitte beachte, das Angebot kann bei Vertragsabschluss die Zahlung einer Provision beinhalten. Weitere Informationen erhältst Du vom Anbieter.
Lage

Barcelona (08880)
Der Anbieter hat die genaue Adresse nicht freigegeben
Weitere Informationen
Weitere Services
Lust auf eine Besichtigung?
Eine Frage zur Immobilie?
Über den Anbieter
Spain HomesMaklerbüro
C/El Montículo 8, Benalmádena, 29631 MÁLAGA
Partnerschaft

Herr Santiago de Cordoba EstepaDein Kontakt
Online-ID: 2me8m5q
Referenznummer: BCN-0033-2-GroundFloor


Spain Homes
Wie zufrieden bist du mit dieser Seite (nicht mit der Immobilie selbst)?

