
Breitwieser Roth GmbH
089 ···
Nr. anzeigenPreise & Kosten
Provision für Mieter
provisionsfrei
Warum sehe ich diese Anzeige? – Du siehst diese Anzeige basierend auf Ihrer Navigation auf unserer Website und den Suchkriterien, die du verwendet hast.
Lage
- zwischen Stiglmaier- und Rotkreuzplatz
- U-Bahn oder Tram-Station Stiglmaierplatz, Hauptbahnhof ist fußläufig erreichbar
- entlang der Nymphenburger Straße und rund um den Stiglmaierplatz befinden sich verschiedene Geschäfte für den täglichen Bedarf
- nette Restaurants und Cafés findet man in den kleinen...
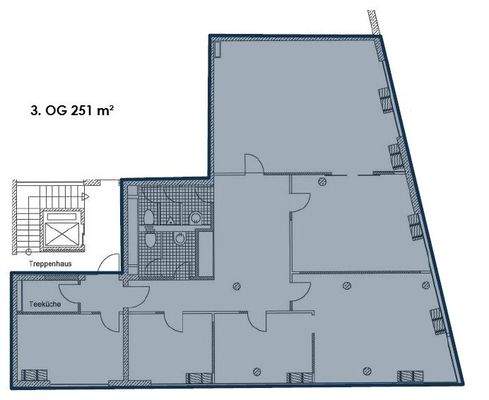
Büro-/Praxisfläche
Kategorie
Bürofläche
Baujahr
2001
Bezug
nach Vereinbarung
Energie & Heizung
Warum sehe ich diese Anzeige? – Du siehst diese Anzeige basierend auf Ihrer Navigation auf unserer Website und den Suchkriterien, die du verwendet hast.
Wärme
Strom
Energieausweistyp
Bedarfsausweis
Gebäudetyp
Nicht-Wohngebäude
Endenergiebedarf (Wärme)
103,40 kWh/(m²·a)
Endenergiebedarf (Strom)
25,60 kWh/(m²·a)
Weitere Energiedaten
Energieträger
Gas
Heizungsart
Zentralheizung
Details
Objektbeschreibung
Kurzbeschreibung
Unmittelbar an der U-Bahn ... Moderne Bürofläche in gefragter Lage
Objekt
Das sechsgeschossige Wohn- und Geschäftshaus aus dem Jahr 2002 befindet sich in markanter Ecklage mit offenem Blick auf die Nachbarbebauung. Zur Straßenseite ist das Gebäude mit einer Granitfassade versehen, der Eingang...
Ausstattung
- Teppichboden
- Beleuchtung vorhanden
- moderne, kleine Teeküche
- Hohlraumboden für IT-Verkabelung
- Personenlift
- Raumhöhe von ca. 2,80 m
- außen liegender Sonnenschutz
- Heizung und Kühlung über dezentrale Lüftungsgeräte
Weitere Informationen
Sonstiges
- 5 TG-Stellplätze können angemietet werden (Mietpreis auf Anfrage)
- 21 m² Archivflächen im Untergeschoss (Mietpreis auf Anfrage)
- öffentliche E-Ladestation (4 x Typ 2 22 kw) in ca. 5 Geminuten entfernt
- ein Energiebedarfsausweis liegt vor, der Bedarfskennwert für Wärme beträgt 103,4 kWh/(m²*a) und...
Anbieter der Immobilie
Online-ID: 2meak5n
Referenznummer: 12070
Finde Angebote wie dieses
Hier geht es zu unserem Impressum, den Allgemeinen Geschäftsbedingungen, den Hinweisen zum Datenschutz und nutzungsbasierter Online-Werbung.