
K. Eis Finanzhaus Deutschland GmbH
020 ···
Nr. anzeigenPreise & Kosten
Provision für Käufer
3% zzgl. MwSt.
Abschreibung/Anlage
Denkmalschutz-Afa
Lage
Das Haus befindet sich in Monheim am Rhein, einer familienfreundlichen Stadt zwischen Düsseldorf und Köln. Die Lage vereint ruhiges, entspanntes Wohnen mit hervorragender Anbindung an die Metropolregion. So erreichen Sie Düsseldorf in etwa 20 Minuten und Köln in rund 30 Minuten mit dem Auto. Auch der öffentliche Nahverkehr...
Das Haus
Baujahr
1960
Energie & Heizung
Warum sehe ich diese Anzeige? – Du siehst diese Anzeige basierend auf Ihrer Navigation auf unserer Website und den Suchkriterien, die du verwendet hast.
Weitere Energiedaten
Energieträger
Gas
Details
Objektbeschreibung
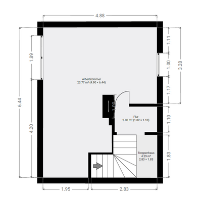
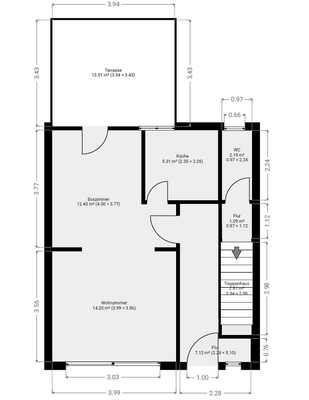
Dieses gemütliche und zugleich großzügige Zuhause aus dem Jahr 1960 bietet mit rund 108 m² Wohnfläche auf 5 Zimmer und einem liebevoll angelegten, großen Garten eine ideale Umgebung für Familien. Das Haus wurde gedämmt und das Dachgeschoss ausgebaut, zudem wurde die Gasanlage 2016 erneuert.
Beim Betreten des Hauses...
Ausstattung
. Baujahr: 1960, gedämmt
. Wohnfläche: ca. 108 m² auf 4 Etagen (Keller, Erdgeschoss, erste Etage, ausgebautes Dachgeschoss)
. Grundstück: ca. 217 m² mit schönem, großem Garten und Terrasse
. Gasanlage erneuert: 2016
. Dachgeschoss ausgebaut, flexibel nutzbar als weiteres Zimmer oder Hobbybereich
. 4...
Weitere Informationen
Sonstiges
Dieses Objekt steht unter Denkmalschutz, und wir beraten Sie auf Wunsch gerne zu diesem Thema und erklären Ihnen, welche Bereiche genau geschützt sind.
Gerne unterstützen wir Sie bei Renovierungswünschen und stellen auf Wunsch ein Angebot zur Verfügung. Auch bei geplanten Änderungen der Grundrisse...
Anbieter der Immobilie
Online-ID: 2meaq5l
Referenznummer: 2481
Finde Angebote wie dieses
Hier geht es zu unserem Impressum, den Allgemeinen Geschäftsbedingungen, den Hinweisen zum Datenschutz und nutzungsbasierter Online-Werbung.