
KLN e.K.
Herr Avi Manachimov
+49 ···
Nr. anzeigenPreise & Kosten
Kaution
3 Brutto- Monatsmieten
Provision für Mieter
provisionsfrei
Warum sehe ich diese Anzeige? – Du siehst diese Anzeige basierend auf Ihrer Navigation auf unserer Website und den Suchkriterien, die du verwendet hast.
Lage
Das Büro befindet sich in zentraler Lage von Unterschleißheim, nur ca. 3 Gehminuten von der Bushaltestelle Ballhausforum und ca. 20 Gehminuten vom S-Bahnhof Lohhof (S1) entfernt, der eine direkte Verbindung zum Münchner Hauptbahnhof (ca. 30 Minuten Fahrzeit) sowie zum Flughafen München (ca. 20 Minuten Fahrzeit) bietet.
Die...
Büro-/Praxisfläche
Kategorie
Bürofläche
Baujahr
1992
Bezug
sofort
Geschoss
Erdgeschoss
Energie & Heizung
Warum sehe ich diese Anzeige? – Du siehst diese Anzeige basierend auf Ihrer Navigation auf unserer Website und den Suchkriterien, die du verwendet hast.
Weitere Energiedaten
Energieträger
Gas
Heizungsart
Zentralheizung
Details
Objektbeschreibung
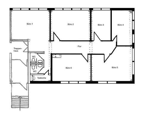
Das Büroensemble in der Max-Planck-Straße bietet moderne und flexibel gestaltbare Büroflächen in einem etablierten Gewerbegebiet von Unterschleißheim. Die angebotene Einheit befindet sich im Erdgeschoss und verfügt über eine Bürofläche von ca. 187 m². Sie umfasst sechs Büroräume, eine Teeküche und zwei...
Ausstattung
Ausstattung:
Teppichboden
Teeküche
2 Getrennte Sanitäranlagen
Außenstellplätze und Tiefgaragenstellplätze verfügbar
Auf die Miete und Nebenkosten werden 19% MwSt. optiert.
Weitere Informationen
Sonstiges
Sonstiges
Wenn Sie Fragen zum Objekt haben bzw. einen Besichtigungstermin wünschen, kontaktieren Sie uns bitte per E-Mail unter avi@kln-immobilien.de oder telefonisch unter der Nummer 089-24257570.
Weitere interessante Objekte finden Sie auch auf unserer Homepage unter...
Anbieter der Immobilie
KLN e.K.
Hochbrückenstr. 8, 80331 München
Online-ID: 2mecl5a
Referenznummer: 4092
Finde Angebote wie dieses
Hier geht es zu unserem Impressum, den Allgemeinen Geschäftsbedingungen, den Hinweisen zum Datenschutz und nutzungsbasierter Online-Werbung.