
Heese und Acar Immobilien GmbH
+49 ···
Nr. anzeigenPreise & Kosten
Provision für Käufer
3,57%
3,57 % vom Kaufpreis inkl. 19 % gesetzlicher MwSt., zahlbar vom Käufer. Die Provision ist fällig und verdient mit Beurkundung des Kaufvertrages. Wir haben einen provisionspflichtigen Maklervertrag mit dem Verkäufer in gleicher Höhe abgeschlossen
Abschreibung/Anlage
Denkmalschutz-Afa
Lage
Das denkmalgeschützte Ensemble befindet sich in sonniger, ruhiger Lage am Rand des Prinzenviertels in Berlin-Karlshorst. Dieser überschaubare bürgerliche Stadtteil verfügt über eine funktionierende Infrastruktur mit sehr guter Verkehrsanbindung an die Innenstadt. Regional- und S-Bahnhof, zahlreiche Einkaufsmöglichkeiten...
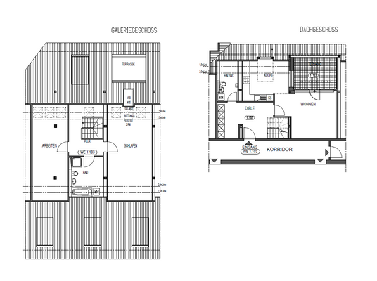
Die Wohnung
Kategorie
Maisonette
Wohnungslage
3. Geschoss
Bezug
sofort bezugsfrei
Wohnanlage
Energie & Heizung
Warum sehe ich diese Anzeige? – Du siehst diese Anzeige basierend auf Ihrer Navigation auf unserer Website und den Suchkriterien, die du verwendet hast.
Energieausweistyp
Verbrauchsausweis
Gebäudetyp
Wohngebäude
Wesentliche Energieträger
Fernwärme
Gültigkeit
24.06.2015 bis 23.06.2025
Effizienzklasse
C
Endenergieverbrauch
88,00 kWh/(m²·a)
Weitere Energiedaten
Energieträger
Fernwärme
Heizungsart
Fußbodenheizung
Details
Objektbeschreibung
Im qualifizierten Alleinauftrag eines unserer Kunden
Attraktive 3-Zimmer-Wohnung mit loftigem Flair und Weitblick in geschichtsträchtigem, sanierten Denkmal
Willkommen in Ihrem neuen Zuhause! Diese helle und großzügige 3-Zimmer-Wohnung besticht durch ihren modernen Grundriss, offene Raumgestaltung und...
Ausstattung
+ 3 geräumige Zimmer (ca 30qm, 23qm & 32qm)
+ Ansprechender Grundriss/ offenes loftiges Wohnen
+ Gäste WC und Hauswirtschaftsraum
+ hochwertige Einbauküche, voll ausgestattet
+ im Obergeschoss ein schönes Bad mit Dusche und Wanne
+ große Fensterfronten, alle Räume sind hell und sonnig
+ platzbietende...
Preisinformation
1 Stellplatz, Kaufpreis: 12.000,00 EUR
Weitere Informationen
Sonstiges
Datenschutz und Vertraulichkeit:
Wir bitten um Ihr Verständnis, dass wir Exposés nur an Interessenten versenden, die uns ihre vollständige Adresse sowie Telefonnummer mitteilen. Ihre Daten behandeln wir selbstverständlich vertraulich und geben sie nicht an Dritte weiter.
Zuverlässige Begleitung:
Von...
Anbieter der Immobilie
Online-ID: 2mecn5j
Referenznummer: 4113845
Finde Angebote wie dieses
Hier geht es zu unserem Impressum, den Allgemeinen Geschäftsbedingungen, den Hinweisen zum Datenschutz und nutzungsbasierter Online-Werbung.