
Schneidereit & De Iacovo Immobilien GmbH
Herr Rocco Schneidereit
004 ···
Nr. anzeigenPreise & Kosten
Provision für Käufer
3,57 % inkl. 19 % MwSt.
Lage
Lagebeschreibung
Die Immobilie befindet sich im Herzen von Merdingen, einem charmanten Winzerdorf am Tuniberg, nur etwa 12 Kilometer westlich von Freiburg. Die ruhige und erhöhte Lage im historischen Ortskern ermöglicht einen weiten Blick über die umliegenden Weinberge bis hin zu den Vogesen.
Merdingen...
Das Haus
Kategorie
Mehrfamilienhaus
Baujahr
1985
Bezug
Sofort
Energie & Heizung
Warum sehe ich diese Anzeige? – Du siehst diese Anzeige basierend auf Ihrer Navigation auf unserer Website und den Suchkriterien, die du verwendet hast.
Energieausweistyp
Verbrauchsausweis
Gebäudetyp
Wohngebäude
Baujahr laut Energieausweis
1985
Wesentliche Energieträger
HOLZ
Gültigkeit
27.03.2024 bis 27.03.2034
Endenergieverbrauch
191,00 kWh/(m²·a)
Weitere Energiedaten
Heizungsart
Zentralheizung
Details
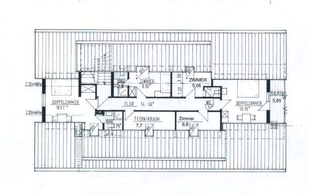
Objektbeschreibung
Solide Immobilie mit Ausblick, Substanz und Perspektive
In ruhiger, zentraler Lage der Winzergemeinde Merdingen, nur rund 15 Minuten von Freiburg entfernt, steht ein gepflegtes Hotel- und Gastronomiegebäude mit über 1.060 Quadratmetern Nutzfläche zum Verkauf. Die Immobilie überzeugt durch ihre sehr gute bauliche...
Ausstattung
Bestand:
. Anzahl Sitzplätze Restaurant: ca. 110
. Baujahr Hotelgebäude: 1985
. Weitere Räume (Büro, Personalraum vorhanden)
. ca. 50 Betten verteilt auf 24 Hotelzimmer
+ flexibel nutzbarer Hobbyraum beispielsweise als Betreiberwohnung oder Wellnessbereich (Sauna bereits vorhanden)
. Haushaltsraum und...
Weitere Informationen
Sonstiges
Laut geltendem Bebauungsplan ist eine Umnutzung zu Wohnzwecken möglich.
Anbieter der Immobilie
Schneidereit & De Iacovo Immobilien GmbH
Munzingerstr. 10, 79111 Freiburg
Online-ID: 2med45t
Referenznummer: G25-87
Finde Angebote wie dieses
Hier geht es zu unserem Impressum, den Allgemeinen Geschäftsbedingungen, den Hinweisen zum Datenschutz und nutzungsbasierter Online-Werbung.