

BoHolz Haus
Herr Wolfram Gebhardt
017 ···
Nr. anzeigenPreise & Kosten
Provision für Käufer
provisionsfrei
Lage
Buchen (Odenwald) bietet ruhiges Wohnen in naturnaher Umgebung bei gleichzeitig guter Infrastruktur. Einkaufsmöglichkeiten, Schulen, Ärzte und Freizeitangebote sind schnell
Die charmante Stadt liegt eingebettet in die sanften Höhen des Odenwalds und bietet eine ausgewogene Mischung aus Ruhe, Natur und urbaner...
Das Haus
Kategorie
Einfamilienhaus
Baujahr
2026
Energie & Heizung
Warum sehe ich diese Anzeige? – Du siehst diese Anzeige basierend auf Ihrer Navigation auf unserer Website und den Suchkriterien, die du verwendet hast.
Weitere Energiedaten
Haustyp
KfW 55
Heizungsart
Fußbodenheizung, Luft-/Wasser-Wärmepumpe
Details
Objektbeschreibung
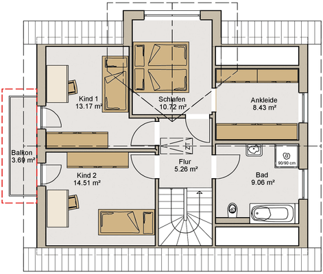
Das 3-Giebelhaus – perfekt für die moderne Familie
Mit ca. 138 m² Wohnfläche bietet dieses Haus alles, was sich eine Familie für komfortables und stilvolles Wohnen wünscht. Die besondere 3-Giebel-Architektur verleiht dem Gebäude einen markanten Charakter und schafft zugleich ein harmonisches, zeitloses...
Ausstattung
Mit unschlagbaren VORTEILEN
* Nachhaltige diffusionsoffene Außenwände mit Holzfaserdämmplatte für sommerlichen Hitzeschutz
* Sicherheitsgeprüfte Haustüre (RC2N Verriegelung) - Schwellenabdichtung mit Folienverbundblech – dies ermöglicht einen schwellenfreien Zugang
* Dachkonstruktion mit einer Schneelast von...
Weitere Informationen
Sonstiges
* Individuell
* Familiär
* Nachhaltig
* Traditionell
* Partnerschaftlich mit voller Kompetenz!
Finanzierungs- und GrundstückSERVICE
Im Preis ist das GRUNDSTÜCK (Erbpacht) und die BODENPLATTE enthalten
GERNE BAUEN WIR DAS HAUS AUCH AUF IHREM EIGENEN GRUNDSTÜCK
Das Angebot versteht sich...
Dokumente
Anbieter der Immobilie
BoHolz Haus
Kantstraße 8, 64668 Rimbach

Online-ID: 2mees5s
Referenznummer: GE-23-12.25-74722
Finde Angebote wie dieses
Hier geht es zu unserem Impressum, den Allgemeinen Geschäftsbedingungen, den Hinweisen zum Datenschutz und nutzungsbasierter Online-Werbung.