
Crozilla.com
Tex immobilie
+38 ···
Nr. anzeigenPreise & Kosten
Provision für Käufer
Bitte beachte, das Angebot kann bei Vertragsabschluss die Zahlung einer Provision beinhalten. Weitere Informationen erhältst Du vom Anbieter.
Die Immobilie
Zu diesem Angebot wurden vom Anbieter keine weiteren Daten hinterlegt. Für weitere Informationen bitte den Anbieter kontaktieren.
Nach Informationen fragenDetails
Objektbeschreibung
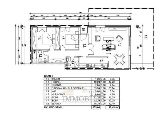
Zum Verkauf steht eine wunderschöne Erdgeschosswohnung mit einer Wohnfläche von 98 m², gelegen auf einem außergewöhnlich großzügigen Grundstück von ca. 1.032 m², in ruhiger und angenehmer Umgebung in der Nähe von Porec, nur 2,5 km vom Meer und den gepflegten Stränden entfernt.
Die Wohnung besteht aus einem geräumigen...
Weitere Informationen
Stichworte
Anzahl der Schlafzimmer: 2, Anzahl der Badezimmer: 1, 1 Etagen
Anbieter der Immobilie
Crozilla.com
Nova cesta 60, 10000 ZAGREB
Online-ID: 2mees5v
Referenznummer: 18904629_0
Finde Angebote wie dieses
Hier geht es zu unserem Impressum, den Allgemeinen Geschäftsbedingungen, den Hinweisen zum Datenschutz und nutzungsbasierter Online-Werbung.