

ZEIT & WERT Immobilien Systempartner Sybille Gerth
Herr Michael Bodelier
022 ···
Nr. anzeigenPreise & Kosten
Provision für Käufer
2,380 %
Wohnanlage
Energie & Heizung
Warum sehe ich diese Anzeige? – Du siehst diese Anzeige basierend auf Ihrer Navigation auf unserer Website und den Suchkriterien, die du verwendet hast.
Energieausweistyp
Bedarfsausweis
Gebäudetyp
Wohngebäude
Wesentliche Energieträger
Luft/Wasser Wämepumpe
Gültigkeit
22.11.2023 bis 22.11.2033
Effizienzklasse
A+
Endenergiebedarf
15,70 kWh/(m²·a)
Details
Objektbeschreibung
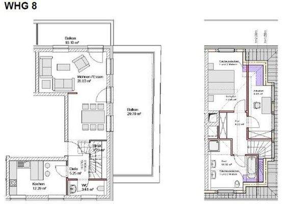
Kerpen-City! Luxus-Penthouse mit 3 Zimmern und 2 Dachterrassen! (MB 4861)
Modernes Wohnen in zentraler Lage - stilvoll, effizient und barrierefrei!
In bester Lage von Kerpen-City präsentiert sich dieses luxuriöse Maisonette-Penthouse als 3-Zimmer Eigentumswohnung mit 2 Dachterrassen, barrierefreiem Zugang, durchdachtem...
Preisinformation
1 Stellplatz, Kaufpreis: 1,00 EUR
Weitere Informationen
Stichworte
Gesamtfläche: 127,17 m², Bundesland: Nordrhein-Westfalen, 5 Etagen
Anbieter der Immobilie

Online-ID: 2mefn5a
Referenznummer: 0-7789
Finde Angebote wie dieses
Hier geht es zu unserem Impressum, den Allgemeinen Geschäftsbedingungen, den Hinweisen zum Datenschutz und nutzungsbasierter Online-Werbung.