

Volksbank Immobilien Münsterland GmbH
Frau Hannah Südhoff
025 ···
Nr. anzeigenDieses Angebot ist Teil des Neubauprojekts
Urbanität in historischer Atmosphäre:
Preise & Kosten
Provision für Käufer
3,00 % inkl. gesetzl. MwSt. vom Käufer inkl. MwSt.
Lage
Mehr Region zwischen der Ems und dem Walshagenpark - Stadtteil von Rheine, rechts der Ems
- Ob zu Fuß, per Fahrrad oder mit dem PKW - das Baugebiet bietet den idealen Ausgangspunkt für Ihre Unternehmungen. Wählen Sie zwischen Spaziergang entlang der Emspromenade zum historischen Marktplatz oder der Erledigung von...
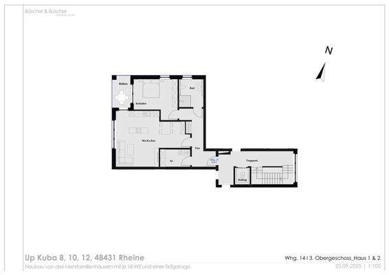
Die Wohnung
Wohnungslage
3. Geschoss
Bezug
nach Fertigstellung
Wohnanlage
Das Neubauprojekt
Energie & Heizung
Warum sehe ich diese Anzeige? – Du siehst diese Anzeige basierend auf Ihrer Navigation auf unserer Website und den Suchkriterien, die du verwendet hast.
Energieausweis: für diesen Gebäudetyp nicht notwendig
Weitere Energiedaten
Heizungsart
Fußbodenheizung
Details
Objektbeschreibung
Urbanität in historischer Atmosphäre und die Naherholung vor der Haustür. QNG-zertifizierte Eigentumswohnungen an der Ems!
In bevorzugter innenstadtnaher Lage, wo einst die Textilindustrie beheimatet war, entsteht in Zusammenarbeit mit dem renommierten Bauträger Büscher & Büscher GmbH & Co. KG ein...
Ausstattung
- Fassadenbegrünung
- min. 1 Tiefgaragenstellplatz pro Wohnung
- alle Wohnungen sind barrierefrei geplant
- Abstellraum mit Anschlüssen für Waschmaschine und Trockner
- KFW-40-NH-Standard mit QNG Zertifikat
- Luft-Wärmepumpe mit einem Warmwasserspeicher und einer unterstützenden...
Preisinformation
1 Tiefgaragenstellplatz
Weitere Informationen
Sonstiges
Die Immobilienangebote verstehen sich freibleibend und unverbindlich. Zwischenverkauf ausdrücklich vorbehalten. Die Objektbeschreibungen wurde aufgrund der Angaben der Verkäufer erstellt. Für die Richtigkeit wird keine Haftung übernommen. Mit dem Eigentümer wurde vereinbart, dass Besichtigungen nur gemeinsam mit...
Anbieter der Immobilie
Volksbank Immobilien Münsterland GmbH
Neubrückenstr. 66, 48143 Münster

Online-ID: 2megf53
Referenznummer: 20126_14
Finde Angebote wie dieses
Hier geht es zu unserem Impressum, den Allgemeinen Geschäftsbedingungen, den Hinweisen zum Datenschutz und nutzungsbasierter Online-Werbung.