
BUSSE - IMMOBILIEN e.K.
Kai Busse
040 ···
Nr. anzeigenPreise & Kosten
Verhandlungsbasis
Provision für Käufer
provisionsfrei
Lage
Hamburg, als zweitgrößte Stadt Deutschlands, besticht durch ihre maritime Atmosphäre, ihre kulturelle Vielfalt und ein breites Angebot an Freizeitmöglichkeiten. Mit einer ausgezeichneten Infrastruktur, renommierten Bildungs- und Kultureinrichtungen sowie der Nähe zur Nord- und Ostsee bietet die Hansestadt eine hohe...
Das Haus
Kategorie
Einfamilienhaus
Geschosse
1 Geschoss
Baujahr
1961
Bezug
SOFORT
Derzeitige Nutzung
frei
Energie & Heizung
Warum sehe ich diese Anzeige? – Du siehst diese Anzeige basierend auf Ihrer Navigation auf unserer Website und den Suchkriterien, die du verwendet hast.
Energieausweistyp
Bedarfsausweis
Gebäudetyp
Wohngebäude
Baujahr laut Energieausweis
2014
Wesentliche Energieträger
Gas
Gültigkeit
20.12.2025 bis 19.12.2035
Effizienzklasse
E
Endenergiebedarf
147,80 kWh/(m²·a)
Weitere Energiedaten
Haustyp
Massivhaus
Energieträger
Gas
Heizungsart
Fußbodenheizung
Details
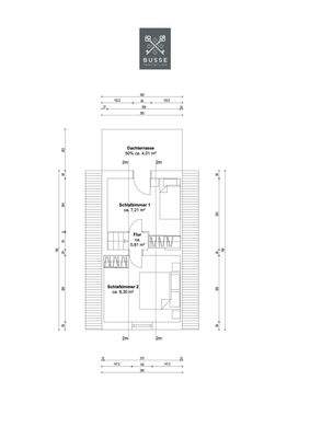
Objektbeschreibung
Willkommen in einem Zuhause, das Ruhe, Komfort und Substanz vereint. Auf einem großzügigen Grundstück mit 651 m² liegt dieses gepflegte Einfamilienhaus in verkehrsberuhigter Lage in Hamburg-Öjendorf. Ideal für Paare oder eine junge Familie, die Wert auf Wohnqualität und ein entspanntes Umfeld legen.
Ca. 92 m²...
Ausstattung
. Großzügiges Grundstück mit ca. 651 m² in ruhiger, verkehrsberuhigter Lage in Hamburg-Öjendorf
. Ca. 92 m² Wohnfläche, optimal geschnittene 3 Zimmer
. Moderne Einbauküche mit hochwertigen Geräten
. Lichtdurchfluteter Wintergarten mit Blick in den Garten
. Separates Nebengebäude mit Hauswirtschaftsraum und...
Weitere Informationen
Sonstiges
Sollte unser Angebot Ihr Interesse geweckt haben, stehen wir Ihnen selbstverständlich gerne für einen Besichtigungstermin zur Verfügung, jedoch bitte nach vorheriger telefonischer Absprache. Bitte wahren Sie die Diskretion und sehen Sie vom Betreten des Grundstückes ohne Begleitung des Immobilienberaters...
Anbieter der Immobilie
Online-ID: 2megg5s
Referenznummer: EFH.-HH-Jenfeld-1225
Finde Angebote wie dieses
Hier geht es zu unserem Impressum, den Allgemeinen Geschäftsbedingungen, den Hinweisen zum Datenschutz und nutzungsbasierter Online-Werbung.