
ohne-makler.net - Immobilien selbst vermarkten
Angebot vom Eigentümer
Kontaktiere den Anbieter schriftlich, es ist keine Telefonnummer hinterlegt.
Preise & Kosten
Provision für Käufer
provisionsfrei
Lage
Das Apartment liegt in einem etablierten Wohngebiet des beliebten Konstanzer Stadtteils. Die Umgebung ist geprägt von Wohnhäusern, gepflegten Grünflächen und einer sehr guten Nahversorgung. Einkaufsmöglichkeiten des täglichen Bedarfs, Bäckereien, Ärzte und gastronomische Angebote befinden sich in kurzer Distanz.
Die...
Die Wohnung
Wohnungslage
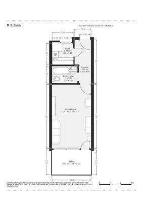
2. Geschoss
Bezug
nach Absprache
Wohnanlage
Energie & Heizung
Warum sehe ich diese Anzeige? – Du siehst diese Anzeige basierend auf Ihrer Navigation auf unserer Website und den Suchkriterien, die du verwendet hast.
Energieausweistyp
Verbrauchsausweis
Gebäudetyp
Wohngebäude
Effizienzklasse
D
Endenergieverbrauch
108,00 kWh/(m²·a)
Weitere Energiedaten
Energieträger
Öl
Heizungsart
Zentralheizung
Details
Objektbeschreibung
Wir freuen uns, Ihnen eine sehr gut geschnittene, moderne und geräumige 1,5-Zimmer-Wohnung anbieten zu können.
Wunderschöne 1,5-Zimmer-Wohnung im 2. Obergeschoss eines ruhigen, gepflegten Mehrfamilienhauses im Stadtteil Konstanz-Fürstenberg. Der Grundriss ist klar strukturiert, die Räume wirken hell und freundlich...
Ausstattung
Balkon, Keller, Fahrstuhl, Vollbad, Einbauküche, Fliesen
Bemerkungen:
- Vinyl- und Parkettboden
- Einbauküche
- ein Südbalkon lädt zum Verweilen ein
- Bad mit Badewanne
- Parkplätze vor dem Haus
- Waschmaschinenanschluss im Badezimmer
- Öl-Zentralheizung
- doppelt verglaste...
Weitere Informationen
Sonstiges
Heizungsart: Zentralheizung
Energieträger: Öl
Überzeugen Sie sich selbst von dieser gut geschnittenen 1,5-Zimmer-Wohnung.
Es kann ab sofort mit den ersten Besichtigungen begonnen werden.
+++ Bitte geben Sie bei Anfragen immer Ihre Adresse und Telefonnummer an! So können wir eine schnelle...
Anbieter der Immobilie
ohne-makler.net - Immobilien selbst vermarkten
Humboldtstr. 25 A, 21509 Glinde
Angebot vom Eigentümer
Dein Ansprechpartner
Kontaktiere den Anbieter schriftlich, es ist keine Telefonnummer hinterlegt.
Online-ID: 2megy5c
Referenznummer: 406116
Finde Angebote wie dieses
Hier geht es zu unserem Impressum, den Allgemeinen Geschäftsbedingungen, den Hinweisen zum Datenschutz und nutzungsbasierter Online-Werbung.