
CAPERA Immobilien Service GmbH
Christian Dücker
Kontaktiere den Anbieter schriftlich, es ist keine Telefonnummer hinterlegt.
Preise & Kosten
nicht in Warmmiete enthalten
Kaution
3.600,00
Warum sehe ich diese Anzeige? – Du siehst diese Anzeige basierend auf Ihrer Navigation auf unserer Website und den Suchkriterien, die du verwendet hast.
Lage
Die Wohnung befindet sich in einer ruhigen Lage in Flensburg. Die Nachbarschaft ist gut erschlossen und bietet eine Vielzahl von Einkaufsmöglichkeiten, Cafés und Restaurants in unmittelbarer Nähe. Die Anbindung an öffentliche Verkehrsmittel ist ausgezeichnet, was den Zugang zu anderen Stadtteilen und nahegelegenen Städten...
Die Wohnung
Wohnungslage
3. Geschoss
Bezug
sofort
Wohnanlage
Energie & Heizung
Warum sehe ich diese Anzeige? – Du siehst diese Anzeige basierend auf Ihrer Navigation auf unserer Website und den Suchkriterien, die du verwendet hast.
Weitere Energiedaten
Energieträger
Gas
Heizungsart
Zentralheizung
Details
Objektbeschreibung
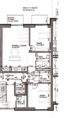
Diese charmante 3-Zimmer-Wohnung befindet sich in einem gepflegten Gebäude in Flensburg, Mühlental. Mit einer Wohnfläche von ca. 83 m² bietet die Wohnung eine durchdachte Raumaufteilung, die sowohl Komfort als auch Funktionalität vereint. Die Wohnung liegt im 3. Obergeschoss und umfasst ein gemütliches Schlafzimmer, ein...
Ausstattung
Die Wohnung verfügt über eine hochwertige Einbauküche, die ideal für Kochliebhaber ist. Genießen Sie die frische Luft auf Ihrem eigenen Balkon, der perfekt für entspannte Abende ist. Ein Aufzug im Gebäude sorgt für einfachen Zugang, und ein Kellerabteil bietet zusätzlichen Stauraum. Die zentrale Heizungsanlage gewährleistet...
Weitere Informationen
Sonstiges
Die Wohnung ist ab sofort verfügbar. Die Möbel können gegen einen Abstand übernommen werden, siehe letzten Bilder. Die Anmietung eines Stellplatzt ist zwingend notwendig. Der Stellplatz ab 30 Euro pro Monat
Energiepass
Energieausweis wird bei Besichtigung vorgelegt.
Stichworte
Gesamtfläche...
Anbieter der Immobilie
CAPERA Immobilien Service GmbH
Dornhofstr. 100, 63263 Neu-Isenburg
Christian Dücker
Dein Ansprechpartner
Kontaktiere den Anbieter schriftlich, es ist keine Telefonnummer hinterlegt.
Online-ID: 2mem55k
Referenznummer: 158275
Finde Angebote wie dieses
Hier geht es zu unserem Impressum, den Allgemeinen Geschäftsbedingungen, den Hinweisen zum Datenschutz und nutzungsbasierter Online-Werbung.