
ohne-makler.net - Immobilien selbst vermarkten
Privat von Hr. Meyer
Kontaktiere den Anbieter schriftlich, es ist keine Telefonnummer hinterlegt.
Preise & Kosten
Provision für Käufer
provisionsfrei
Lage
Eisenhofen mit rund 900 Einwohnern liegt im schönen Glonntal, mitten im ruhigen Hügelland zwischen Dachau und Altomünster, nordwestlich von München. Der S-Bahnhof Erdweg (S2) befindet sich in 950 m Entfernung und bietet eine direkte Zugverbindung nach München im 30-Minuten-Takt. Der Anschlusspunkt an die A8 Sulzemoos ist rund...
Das Grundstück
Details
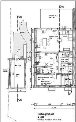
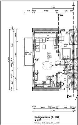
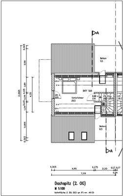
Objektbeschreibung
sofort bebaubar - Baugenehmigung vom Sept. 2025 liegt vor (Freisteller Bebauungsplan Nr. 71).
Optimale Nutzung des südorientierten Grundstücks durch individuell geplante Doppelhaushälfte für 2 eigenständige Wohneinheiten als Energieeffizienzhaus 55
Garage unterkellert.
Wohneinheit 1 (zwei untere Stockwerke): 139 m²...
Weitere Informationen
Sonstiges
Makleranfragen nicht erwünscht. Nach § 7 UWG sind unaufgeforderte Kontaktaufnahmen durch Makler ohne ausdrückliche Einwilligung des Empfängers verboten!
ohne-makler (OM) ist weder Anbieter noch Vermittler der Immobilie. OM betreibt eine Plattform für Immobilieneigentümer, die unter anderem die...
Anbieter der Immobilie
ohne-makler.net - Immobilien selbst vermarkten
Humboldtstr. 25 A, 21509 Glinde
Privat von Hr. Meyer
Dein Ansprechpartner
Kontaktiere den Anbieter schriftlich, es ist keine Telefonnummer hinterlegt.
Online-ID: 2menq5t
Referenznummer: 415768
Finde Angebote wie dieses
Hier geht es zu unserem Impressum, den Allgemeinen Geschäftsbedingungen, den Hinweisen zum Datenschutz und nutzungsbasierter Online-Werbung.