
McMakler GmbH
Ihr McMakler Team
080 ···
Nr. anzeigenPreise & Kosten
Provision für Käufer
Die Provision i.H.v. 3,57 % inkl. MwSt. ist mit Kaufvertragsbeurkundung fällig, sofern der Verkaufspreis über 83.000,00 € liegt.
Liegt der Verkaufspreis dagegen bei/unter 83. Weitere Informationen siehe Provisionshinweis.
Lage
+ Lage: Ruhige Waldrandlage - genießen Sie einen hohen Erholungswert
Bildung und Betreuung: In max. 5min Fahrradminuten Schule und Kindergarten für die Jüngsten erreichbar
+ Nahversorgung: Nur rund 800 m zu wichtigen Anlaufstellen wie Supermärkten, Apotheken, Bankfilialen und Postfilialen
+ Die Lage ist nah an...
Das Renditeobjekt
Baujahr
1940
Bezug
nach Absprache
Energie & Heizung
Warum sehe ich diese Anzeige? – Du siehst diese Anzeige basierend auf Ihrer Navigation auf unserer Website und den Suchkriterien, die du verwendet hast.
Energieausweistyp
Bedarfsausweis
Gebäudetyp
Wohngebäude
Baujahr laut Energieausweis
1940
Wesentliche Energieträger
Strom
Effizienzklasse
E
Endenergiebedarf
135,90 kWh/(m²·a)
Weitere Energiedaten
Energieträger
Elektro
Heizungsart
Zentralheizung
Details
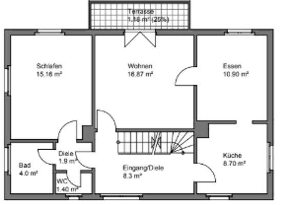
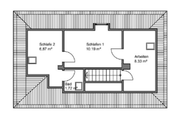
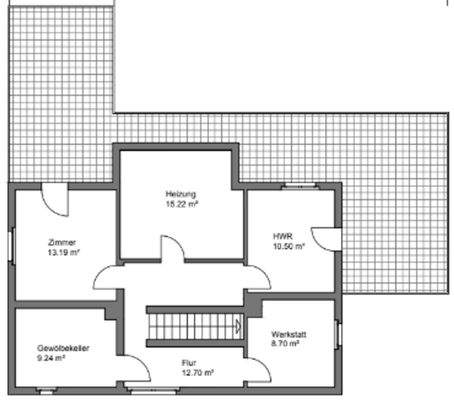
Objektbeschreibung
Objektnr: 1068741
Dieses großzügige Einfamilienhaus bietet nicht nur ein Zuhause im Grünen, sondern auch vielseitige Möglichkeiten zur Kombination von Wohnen und Arbeiten unter einem Dach. Die ruhige und naturnahe Waldrandlage schafft ideale Bedingungen für alle, die Lebensqualität und Flexibilität suchen.
Das...
Ausstattung
+ In ruhiger Umgebung in Waldrandlage von Calw, beschaulich und sicher in einer Nebenstraße, ideal als Ihr neues Heim
+ Erholung pur: Der Garten auf ca. 438 m² großzügigem Grund lädt zum Verweilen ein - ein Balkon bereichert das Erlebnis
+ Die Immobilie präsentiert sich in einem gepflegten Zustand - die letzte...
Weitere Informationen
Provisionshinweis
Die Provision i.H.v. 3,57 % inkl. MwSt. ist mit Kaufvertragsbeurkundung fällig, sofern der Verkaufspreis über 83.000,00 € liegt.
Liegt der Verkaufspreis dagegen bei/unter 83.000,00 €, ist die fest vereinbarte Mindestprovision i.H.v. mind. 5.950,00 € inkl. MwSt. mit Kaufvertragsbeurkundung fällig...
Anbieter der Immobilie
McMakler GmbH
Am Postbahnhof 17, 10243 Berlin
Online-ID: 2meny5p
Referenznummer: ec4efa11d2
Finde Angebote wie dieses
Hier geht es zu unserem Impressum, den Allgemeinen Geschäftsbedingungen, den Hinweisen zum Datenschutz und nutzungsbasierter Online-Werbung.