
CUBION Immobilien AG
Herr Tiziano Sanna
+49 ···
Nr. anzeigenPreise & Kosten
Provision für Mieter
provisionsfrei
Warum sehe ich diese Anzeige? – Du siehst diese Anzeige basierend auf Ihrer Navigation auf unserer Website und den Suchkriterien, die du verwendet hast.
Lage
Fußweg zu öffentl. Verkehrsmitteln: 3 Min.
Fahrzeit zum nächsten Hauptbahnhof: 3 Min.
Fahrzeit zur BAB: 3 Min.
Fahrzeit zum nächsten Flughafen: 18 Min.
Büro-/Praxisfläche
Bezug
01.04.2026
Energie & Heizung
Warum sehe ich diese Anzeige? – Du siehst diese Anzeige basierend auf Ihrer Navigation auf unserer Website und den Suchkriterien, die du verwendet hast.
Weitere Energiedaten
Energieträger
Fernwärme
Details
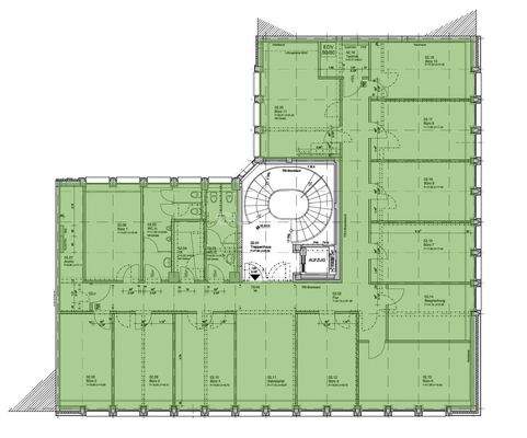
Objektbeschreibung
Dieses im Jahre 2008 kernsanierte und repräsentative Büro- und Geschäftsgebäude bietet auf 4 Etagen klimatisierte Büro- und Praxisflächen mit gehobener Ausstattung.
Folgende Flächen stehen derzeit zur Verfügung:
1. Obergeschoss: ca. 362 m²
2. Obergeschoss: ca. 362 m²
Summe: ca. 724...
Ausstattung
Bodenbelag:Teppichboden, Fliesen
EDV-Verkabelung: CAT 7
Kabelführung: Brüstungskanäle
Kühlung: optional möglich
Sonnenschutz: außen liegend (elektrisch)
Küche: Teeküche
Beleuchtung: Standleuchten
Aufzug: Personenaufzug
Heizung: Fernwärme
Barrierearm: ja
Baujahr: Kernsanierung...
Weitere Informationen
Sonstiges
GEG 2020: Ein Energieausweis liegt zurzeit nicht vor.
Dieses Angebot ist provisionsfrei für den Mieter!
Alle Informationen in diesem Exposé beruhen auf Angaben, die wir vom Vermieter erhalten haben. Für Richtigkeit und Vollständigkeit übernehmen wir keine Gewähr. Zwischenvermietung vorbehalten...
Anbieter der Immobilie

CUBION Immobilien AG
Akazienallee 65, 45478 Mülheim
Online-ID: 2meq25l
Referenznummer: 1274
Finde Angebote wie dieses
Hier geht es zu unserem Impressum, den Allgemeinen Geschäftsbedingungen, den Hinweisen zum Datenschutz und nutzungsbasierter Online-Werbung.