
Schantl ITH Immobilientreuhand GmbH
Herr Mark Prettenthaler
+43 ···
Nr. anzeigenPreise & Kosten
Provision für Käufer
3% des Kaufpreises zzgl. 20% USt.
Lage
Die Stadtgemeinde Korneuburg liegt 20 Kilometer nördlich vor den Toren von Wien. Umgeben wird sie von der unberührten Natur der Donauauen. Geschätzt wird der Ort nicht nur als romantische Hochzeitsstadt. Seine vielfältigen Freizeitmöglichkeiten und freundlichen Gastbetriebe laden Jung und Alt gleichermaßen zu Ausflügen und...
Das Renditeobjekt
Energie & Heizung
Warum sehe ich diese Anzeige? – Du siehst diese Anzeige basierend auf Ihrer Navigation auf unserer Website und den Suchkriterien, die du verwendet hast.
Heizwärmebedarf (HWB)
39,80 kWh/(m²·a)
Gesamtenergieeffizienz (fGEE)
0,79
Details
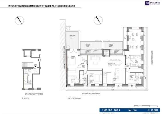
Objektbeschreibung
TOLLE LAGE IN KORNEUBURG! VERKAUF INKLUSIVE AUFRECHTER BAUGENEHMIGUNG. JETZT ZUGREIFEN!
Zum Verkauf steht ein attraktiver Rohdachboden in zentraler Lage von Korneuburg. Der Plan sieht ein Penthouse mit 3 Freiflächen vor. Eine Teilung ist anhand der aktuellen Bebauungsbestimmungen nicht...
Preisinformation
1 Garagenstellplatz
Weitere Informationen
Stichworte
Garage vorhanden, Wohnfläche: 166,28 m², Nutzfläche: 183,89 m², Bundesland: Niederösterreich, 3 Etagen
Anbieter der Immobilie

Schantl ITH Immobilientreuhand GmbH
Messendorferstraße 71a, 8041 Graz
Online-ID: 2merm5l
Referenznummer: OBGC20251205143141910e304f8a7a5
Finde Angebote wie dieses
Günstige Immobilienfinanzierung einfach online berechnen
Persönliches Angebot berechnenWarum sehe ich diese Werbung? – Du siehst diese Werbung basierend auf Deiner Navigation auf unserer Website und der von Dir verwendeten Suchkriterien.
Diese Werbung wird bezahlt von durchblicker
Werbung melden
Hier geht es zu unserem Impressum, den Allgemeinen Geschäftsbedingungen, den Hinweisen zum Datenschutz und nutzungsbasierter Online-Werbung.