
ohne-makler.net - Immobilien selbst vermarkten
Privat von Sözen
Kontaktiere den Anbieter schriftlich, es ist keine Telefonnummer hinterlegt.
Preise & Kosten
nicht in Warmmiete enthalten
Kaution
3.000,00
Warum sehe ich diese Anzeige? – Du siehst diese Anzeige basierend auf Ihrer Navigation auf unserer Website und den Suchkriterien, die du verwendet hast.
Lage
Die Wohnung liegt in einem beliebten südöstlichen Berliner Stadtteil mit sehr guter Infrastruktur. Einkaufsmöglichkeiten wie Supermärkte, Bäckereien und kleinere Geschäfte befinden sich in unmittelbarer Nähe. Mehrere Kindertagesstätten und Schulen sind fußläufig erreichbar, was die Lage besonders familienfreundlich...
Die Wohnung
Wohnungslage
5. Geschoss
Bezug
sofort
Wohnanlage
Energie & Heizung
Warum sehe ich diese Anzeige? – Du siehst diese Anzeige basierend auf Ihrer Navigation auf unserer Website und den Suchkriterien, die du verwendet hast.
Energieausweistyp
Verbrauchsausweis
Gebäudetyp
Wohngebäude
Effizienzklasse
C
Endenergieverbrauch
78,00 kWh/(m²·a)
Weitere Energiedaten
Energieträger
Fernwärme
Details
Objektbeschreibung
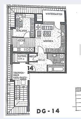
Diese helle und moderne 2-Zimmer-Wohnung mit ca. 56 m² Wohnfläche besticht durch ihre hochwertige Sanierung, den durchdachten Grundriss und den lichtdurchfluteten Wintergarten. Große Fensterfronten schaffen ein freundliches Wohnambiente, während die hochwertige Ausstattung für ein angenehmes Wohngefühl sorgt.
Der...
Ausstattung
Wintergarten, Keller, Fahrstuhl, Vollbad, Duschbad, Einbauküche, Parkett
Bemerkungen:
. ca. 56 m² Wohnfläche
. 2 Zimmer + Abstellraum + Wintergarten
. lichtdurchflutetes Wohnzimmer mit Zugang zum Wintergarten
. modernes Schlafzimmer (Schrank kann übernommen werden)
. neue Einbauküche mit viel Stauraum...
Preisinformation
Nettokaltmiete: 1.050,00 EUR
Weitere Informationen
Sonstiges
Energieträger: Fernwärme
ab sofort zu vermieten
Makleranfragen nicht erwünscht. Nach § 7 UWG sind unaufgeforderte Kontaktaufnahmen durch Makler ohne ausdrückliche Einwilligung des Empfängers verboten!
ohne-makler (OM) ist weder Anbieter noch Vermittler der Immobilie. OM betreibt eine...
Anbieter der Immobilie
ohne-makler.net - Immobilien selbst vermarkten
Humboldtstr. 25 A, 21509 Glinde
Privat von Sözen
Dein Ansprechpartner
Kontaktiere den Anbieter schriftlich, es ist keine Telefonnummer hinterlegt.
Online-ID: 2mest5h
Referenznummer: 402894
Finde Angebote wie dieses
Hier geht es zu unserem Impressum, den Allgemeinen Geschäftsbedingungen, den Hinweisen zum Datenschutz und nutzungsbasierter Online-Werbung.