Version: 8.24.1Navigation ĂĽberspringen
45.454 €
2 Zimmer  â€˘  50 m²  â€˘  1. Geschoss
Immowelt logo

Studio zum Kauf
45454 €
909 €/m²
2 Zimmer  â€˘  50 m²  â€˘  1. Geschoss

Wohnung in Hurghada

Erleben Sie das ultimative moderne Leben in Hurghada, Ägypten. Dieses atemberaubende Apartment mit 1 Schlafzimmer ist Teil eines Neubauprojekts, das 2027 abgeschlossen sein soll.
Mit einer Gesamtwohnfläche von 50 m² ist dieses geräumige Apartment perfekt für alle, die ein komfortables und stilvolles Zuhause suchen. Genießen Sie den atemberaubenden Blick auf die Straße bequem von zu Hause aus. Das Gebäude ist sicher und barrierefrei gestaltet, mit einer Lobby, einem Swimmingpool und der Nähe zu einer Schwimmhalle, die nur 0,1 km entfernt ist. Der Hurghada International Airport ist ebenfalls günstig gelegen, nur 7 km entfernt, sodass es einfach ist, die Region zu erkunden.
Dieses seniorenfreundliche Apartment ist perfekt fĂĽr alle, die ein stressfreies Wohnerlebnis in einer begehrten Lage suchen.

Merkmale

  • 1. Geschoss
  • Rollstuhlgerecht
  • Bodenbelag: Fliesen, Estrich
  • Swimmingpool

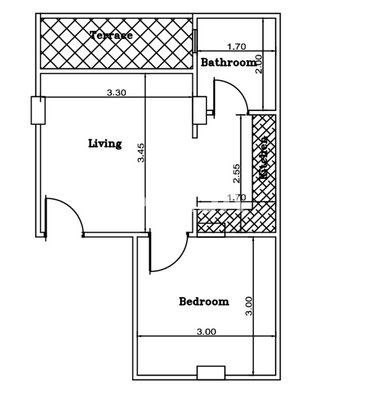
Grundrisse

Grundrisse
1 / 1

Realisiere Dein Projekt

Bausubstanz und Energie

Der Anbieter hat keine Informationen zum Energieverbrauch bereit gestellt.
  • Baujahr2027
  • Zustand der ImmobilieNeubau
Immowelt logo

Preisdetails

Kaufpreis
45454 €
909,08 €/m²
Provision für Käufer
Bitte beachte, das Angebot beinhaltet bei Vertragsabschluss die Zahlung einer Provision. Weitere Informationen erhältst Du vom Anbieter.

Lage

address-icon
Hurghada (1962013)
Fallback location image
Die Karte ist nicht verfĂĽgbar.

Weitere Informationen

Stichworte Gesamtfläche: 50,00 m², Anzahl der Schlafzimmer: 1, Anzahl der Badezimmer: 1, Flurstück: Hurghada, Bundesland: Red Sea, 3 Etagen, Distanz zum Flughafen: 7 Sonstiges/Wohnen: seniorengerechtes Wohnen

Weitere Services

Lust auf eine Besichtigung?
Eine Frage zur Immobilie?
Nachricht hinzufĂĽgen
Mit der Nutzung der oben angegebenen Telefonnummer oder durch Klicken auf „Kontaktieren“ akzeptierst Du die Allgemeinen Nutzungsbedingungen, denen Du jederzeit widersprechen kannst. Weitere Informationen zum Datenschutz

Ăśber den Anbieter

maija.ioMaklerbĂĽro
Elimäenkatu 17-19, 00510 HELSINKI
partner badge
Partnerschaft
Homes BayDein Kontakt
Online-ID: 2meuj5z
Referenznummer: 671859
maija.io
Nachricht hinzufĂĽgen
Mit der Nutzung der oben angegebenen Telefonnummer oder durch Klicken auf „Kontaktieren“ akzeptierst Du die Allgemeinen Nutzungsbedingungen, denen Du jederzeit widersprechen kannst. Weitere Informationen zum Datenschutz
Wie zufrieden bist du mit dieser Seite (nicht mit der Immobilie selbst)?