Omerovic Immobilien GmbH

Herrn Denis Omerovic

Renovierungsbedürftiges und dennoch charmantes Landhaus mit uneinsichtigem, begrüntem Innenhof in Palterndorf!

€ 125.000
Kaufpreis
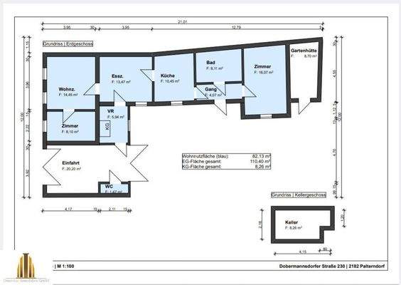
82,13 m²
Wohnfläche ca.
4
Zimmer
302 m²
Grundstücksfl. ca.
Finanzierung berechnen mit durchblicker

Der Anbieter dieses Objekts hat gegenüber der AVIV Germany GmbH als Betreiber dieses Online-Marktplatzes erklärt, nicht als Unternehmer im Sinne des § 1 KSchG zu handeln. Die im Verbraucherschutzrecht der Union verankerten Verbraucherrechte (insbesondere Informationspflichten und Rücktritts- bzw. Widerrufsrechte) finden auf den Vertrag zwischen dem Anbieter des Objekts und Ihnen (dem Interessenten) keine Anwendung.

Gewerblicher Anbieter

Der Anbieter dieses Objekts hat gegenüber der AVIV Germany GmbH als Betreiber dieses Online-Marktplatzes erklärt, als Unternehmer im Sinne des § 1 KSchG zu handeln.

AdresseStraße nicht freigegeben
2182 Palterndorf 
Auf Karte ansehen

Preise & Kosten

Kaufpreis € 125.000

Provision für Käufer

4.500,00 € inkl. 20% USt.

Lage

Das Haus

Kategorie

Einfamilienhaus

Baujahr

1934

  • Zustand: Altbau (bis 1945), renovierungsbedürftig / sanierungsbedürftig
  • 1 Stellplatz

Energie & Heizung

Heizwärmebedarf (HWB)

435,00 kWh/(m²·a)

Gesamtenergieeffizienz (fGEE)

4,12

Details

Objektbeschreibung

Dieses Landhaus liegt in Palterndorf im nordöstlichen Weinviertel im Bezirk Gänserndorf in Niederösterreich. Der Ort ist eine Katastralgemeinde in der Marktgemeinde Palterndorf-Dobermannsdorf.

Auf einer Wohnfläche von ca. 82,13 m² unterteilt sich die Liegenschaft in einen Vorraum, einem Esszimmer, einem Wohnzimmer...

Mehr anzeigen

Preisinformation

1 Stellplatz

Weitere Informationen

Stichworte
Nutzfläche: 119,29 m², Anzahl der Badezimmer: 1, Anzahl der separaten WCs: 1, Gartenfläche: 142,00 m², Kellerfläche: 8,26 m², Bundesland: Niederösterreich

Anbieter der Immobilie

Omerovic Immobilien GmbH

Untere Augartenstraße 22/7, 1020 WIEN

user

Herrn Denis Omerovic

Dein Ansprechpartner

Anbieter-Website Anbieter-Profil Anbieter-Impressum

Online-ID: 2meut55

Referenznummer: OBGC2024110315214811921ae23b3fc

Finde Angebote wie dieses

imageimageimage

Günstige Immobilienfinanzierung einfach online berechnen

Persönliches Angebot berechnen

Hier geht es zu unserem Impressum, den Allgemeinen Geschäftsbedingungen, den Hinweisen zum Datenschutz und nutzungsbasierter Online-Werbung.