
Maklerbüro Bernd Pfretzschner
Herr Bernd Pfretzschner
03 ···
Nr. anzeigenPreise & Kosten
in Warmmiete enthalten
Kaution
1.100,00
Warum sehe ich diese Anzeige? – Du siehst diese Anzeige basierend auf Ihrer Navigation auf unserer Website und den Suchkriterien, die du verwendet hast.
Lage
Die Kleinstadt Falkenstein liegt an der B169 - die direkte Verbindung zwischen Vogtland und Erzgebirge. Falkenstein ist an die Bahnverbindung Zwickau-Klingenthal-Tschechien bzw. Plauen-Klingenthal-Tschechien angeschlossen.Die ca. 8000 Einwohner zählende Stadt lädt zum Verweilen ein. So kann man zum Beispiel durch neuangelegte...
Die Wohnung
Wohnungslage
3. Geschoss
Bezug
sofort
Energie & Heizung
Warum sehe ich diese Anzeige? – Du siehst diese Anzeige basierend auf Ihrer Navigation auf unserer Website und den Suchkriterien, die du verwendet hast.
Energieausweistyp
Bedarfsausweis
Gebäudetyp
Wohngebäude
Gültigkeit
01.04.2019 bis 01.04.2029
Effizienzklasse
E
Endenergiebedarf
132,40 kWh/(m²·a)
Weitere Energiedaten
Energieträger
Gas
Heizungsart
Zentralheizung
Details
Objektbeschreibung
Kurzbeschreibung
Energieausweis liegt vor.
Objekt
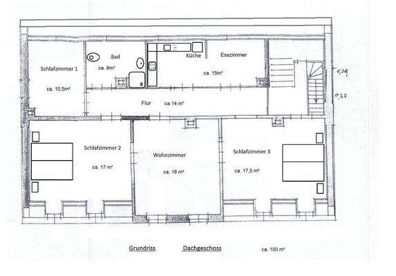
Sie wohnen im Dachgeschoss eines dreistöckigen Mehrfamilienhauses. Die Wohnung ist im gepflegten Zustand. Kleine Mängel werden im Protokoll aufgenommen, oder für Sie behoben, oder mit einem Rabatt versehen. Das Treppenhaus wurde 2017 komplett renoviert und so der...
Ausstattung
Die ca. 100m² große Wohnung überzeugt durch die leichten Dachschrägen mit Gemütlichkeit. Im Flur, Wohnzimmer, den drei Schlafzimmern, in der Küche und im Esszimmer wurde Laminat verlegt. Die Wohnung ist teilweise möbliert und die Möbel können auf Wunsch gern übernommen werden. Zur Küchenausstattung gehört zum Beispiel eine...
Weitere Informationen
Stichworte
Nutzfläche: 20,00 m², Anzahl der Schlafzimmer: 3, Anzahl der Badezimmer: 1, Bundesland: Sachsen, 3 Etagen, modernisiert: 2017
Anbieter der Immobilie

Maklerbüro Bernd Pfretzschner
Cunsdorf . 17, 07985 Elsterberg
Online-ID: 2mewq5g
Referenznummer: 165
Finde Angebote wie dieses
Hier geht es zu unserem Impressum, den Allgemeinen Geschäftsbedingungen, den Hinweisen zum Datenschutz und nutzungsbasierter Online-Werbung.