

DAHLER Halstenbek/Rellingen
Team DAHLER Niendorf Schnelsen
0 4 ···
Nr. anzeigenPreise & Kosten
Provision für Käufer
3,57 % inkl. gesetzlicher MwSt. bezogen auf den Kaufpreis
Lage
Der beschauliche und vielseitige Stadtteil Schnelsen der wunderschönen Hansestadt Hamburg liegt hoch oben im Nord-Westen der Stadt. Die ebenfalls bei der Bevölkerung sehr beliebten Stadtteile Niendorf und Eidelstedt grenzen daran an. Hamburg-Schnelsen zählt zu den gefragten Wohnlagen im Hamburger Nordwesten. Hier verbinden...
Die Wohnung
Derzeitige Nutzung
vermietet
Wohnanlage
Energie & Heizung
Warum sehe ich diese Anzeige? – Du siehst diese Anzeige basierend auf Ihrer Navigation auf unserer Website und den Suchkriterien, die du verwendet hast.
Energieausweistyp
Verbrauchsausweis
Gebäudetyp
Wohngebäude
Baujahr laut Energieausweis
2012
Wesentliche Energieträger
HOLZ
Gültigkeit
bis 23.09.2025
Effizienzklasse
B
Endenergieverbrauch
61,80 kWh/(m²·a)
Weitere Energiedaten
Energieträger
Pellets
Details
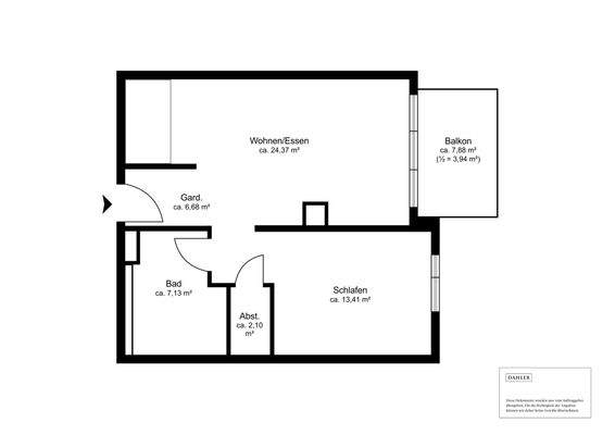
Objektbeschreibung
Diese charmante 2-Zimmer-Eigentumswohnung in begehrter Lage von Hamburg-Schnelsen überzeugt durch ihren durchdachten Grundriss, eine behagliche Wohnatmosphäre und einen großzügigen Süd-Balkon, der zu entspannten Stunden im Freien einlädt.
-Baujahr: 2012
-Wohnfläche: ca. 56 m²
-Zimmer: 2
-Balkon...
Ausstattung
Die solide Kapitalanlage überzeugt mit einer durchdachten Ausstattung und einem modernen Wohnkonzept. Die offene Wohnküche schließt direkt an das Wohnzimmer an und wird durch einen kleinen Tresen abgerundet, der sich perfekt für den ersten Kaffee am Morgen eignet. Die Küche ist in hellen Tönen gehalten, verfügt über...
Preisinformation
Nettorendite Ist in %: 3,42
Nettorendite Soll in %: 3,42
Soll-Mieteinnahmen pro Jahr: 9.396,00 EUR
Ist-Mieteinnahmen pro Jahr: 9.396,00 EUR
Weitere Informationen
Stichworte
vermietbare Fläche: 56,80 m², Anzahl Balkone: 1
Anbieter der Immobilie
DAHLER Halstenbek/Rellingen
Hauptstraße 47, 25469 Halstenbek

Online-ID: 2mez659
Referenznummer: DC-HNO833
Finde Angebote wie dieses
Hier geht es zu unserem Impressum, den Allgemeinen Geschäftsbedingungen, den Hinweisen zum Datenschutz und nutzungsbasierter Online-Werbung.