
Immo Heller
Herr Sönke Rohwedder-Struve
Kontaktiere den Anbieter schriftlich, es ist keine Telefonnummer hinterlegt.
Preise & Kosten
Kaution
2 Monatskaltmieten
Warum sehe ich diese Anzeige? – Du siehst diese Anzeige basierend auf Ihrer Navigation auf unserer Website und den Suchkriterien, die du verwendet hast.
Lage
Die Wohnung liegt in einer der bestangebundenen Wohnlagen im Berliner Südosten. Direkt gegenüber befindet sich der Bahnhof Schöneweide, ein großer Verkehrsknotenpunkt in zentaler Lage. Von hier aus erreicht man den Flughafen BER in nur 13 Minuten mit dem Flughafenexpress FEX oder in 24 Minuten mit der S-Bahn. Der Berliner...
Die Wohnung
Wohnungslage
3. Geschoss
Bezug
16.02.2026
Wohnanlage
Details
Objektbeschreibung
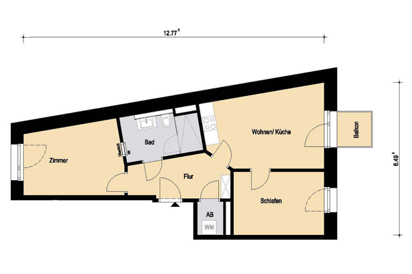
Die hochwertige 3-Zimmer-Wohnung mit rund 54 m² befindet sich im dritten Obergeschoss des Neubauprojekts Schnellerhöfe in der Michael-Brückner-Straße 7 in Berlin-Schöneweide. Das Gebäude gehört zu einem modernen Wohnensemble aus drei Häusern, das architektonisch klar, hell und urban gestaltet ist. Die Bebauung schafft eine...
Weitere Informationen
Stichworte
Anzahl der Schlafzimmer: 2, Anzahl der Badezimmer: 1, Anzahl Balkone: 1
Anbieter der Immobilie
Immo Heller
Eichhornstraße 4, 97070 Würzburg
Herr Sönke Rohwedder-Struve
Dein Ansprechpartner
Kontaktiere den Anbieter schriftlich, es ist keine Telefonnummer hinterlegt.
Online-ID: 2mf485q
Referenznummer: 5483#H6tGt
Finde Angebote wie dieses
Hier geht es zu unserem Impressum, den Allgemeinen Geschäftsbedingungen, den Hinweisen zum Datenschutz und nutzungsbasierter Online-Werbung.