
McMakler GmbH
Ihr McMakler Team
080 ···
Nr. anzeigenPreise & Kosten
Provision für Käufer
Käufer-Provision: 7,14 % inkl. MwSt., sofern der Verkaufspreis über 83.000,00 € liegt. Die Provision ist mit Beurkundung des Kaufvertrages fällig.
Liegt der Verkaufspreis dagegen bei/unter 83. Weitere Informationen siehe Provisionshinweis.
Lage
Lage: Attraktive Lage in Herzberg am Harz mit guten Voraussetzungen für Investoren
Bildung und Betreuung: Familienfreundlicher Wohnkomfort dank Kindergarten und Schule in fußläufiger Entfernung
Nahversorgung: Tägl. Bedarf durch Supermarkt, Apotheke, Postfiliale und Bankfiliale in max. 6 km gedeckt
Anbindung...
Das Renditeobjekt
Kategorie
Mehrfamilienhaus
Baujahr
1965
Bezug
nach Absprache
Energie & Heizung
Warum sehe ich diese Anzeige? – Du siehst diese Anzeige basierend auf Ihrer Navigation auf unserer Website und den Suchkriterien, die du verwendet hast.
Energieausweistyp
Bedarfsausweis
Gebäudetyp
Wohngebäude
Baujahr laut Energieausweis
1965
Wesentliche Energieträger
Gas
Effizienzklasse
F
Endenergiebedarf
195,40 kWh/(m²·a)
Weitere Energiedaten
Energieträger
Gas
Details
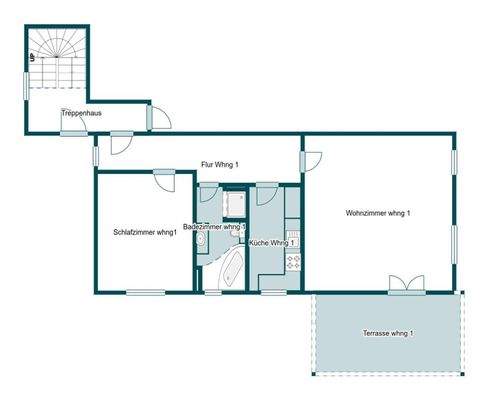
Objektbeschreibung
Objektnr: 1069409
Das gepflegte Mehrfamilienhaus mit vier Wohneinheiten befindet sich im Herzberger Ortsteil Pöhlde und wurde im Jahr 1997 in solider Massivbauweise aus Ziegelsteinen errichtet. Die Immobilie präsentiert sich in einem sehr guten Zustand und überzeugt durch eine durchdachte Bauweise mit gedämmter...
Ausstattung
+ Gepflegtes Mehrfamilienhaus mit 4 Wohneinheiten in Herzberg am Harz - ideal für Kapitalanleger
+ Aktuelle Jahresnettokaltmiete von ca. 19.725 € mit attraktivem Mietsteigerungspotenzial
+ Solide Massivbauweise, regelmäßig modernisiert - Dachgeschoss bereits teilausgebaut
+ Hochwertige Ausstattung mit Fliesen...
Preisinformation
Ist-Mieteinnahmen pro Jahr: 19.725,00 EUR
Weitere Informationen
Provisionshinweis
Käufer-Provision: 7,14 % inkl. MwSt., sofern der Verkaufspreis über 83.000,00 € liegt. Die Provision ist mit Beurkundung des Kaufvertrages fällig.
Liegt der Verkaufspreis dagegen bei/unter 83.000,00 €, ist die fest vereinbarte Mindestprovision i.H.v. mind. 5.950,00 € inkl. MwSt. mit...
Anbieter der Immobilie
McMakler GmbH
Am Postbahnhof 17, 10243 Berlin
Online-ID: 2mf5x5z
Referenznummer: 2d2793c5d8
Finde Angebote wie dieses
Hier geht es zu unserem Impressum, den Allgemeinen Geschäftsbedingungen, den Hinweisen zum Datenschutz und nutzungsbasierter Online-Werbung.