
Wohnungsbörse Erzgebirge GmbH
Herr Guido Wagner
004 ···
Nr. anzeigenPreise & Kosten
Kaution
633,00
Warum sehe ich diese Anzeige? – Du siehst diese Anzeige basierend auf Ihrer Navigation auf unserer Website und den Suchkriterien, die du verwendet hast.
Die Wohnung
Wohnungslage
1. Geschoss
Bezug
sofort
Wohnanlage
Energie & Heizung
Warum sehe ich diese Anzeige? – Du siehst diese Anzeige basierend auf Ihrer Navigation auf unserer Website und den Suchkriterien, die du verwendet hast.
Energieausweistyp
Verbrauchsausweis
Gebäudetyp
Wohngebäude
Baujahr laut Energieausweis
1900
Wesentliche Energieträger
GAS
Gültigkeit
bis 07.01.2028
Effizienzklasse
D
Endenergieverbrauch
124,50 kWh/(m²·a)
Weitere Energiedaten
Heizungsart
Zentralheizung
Details
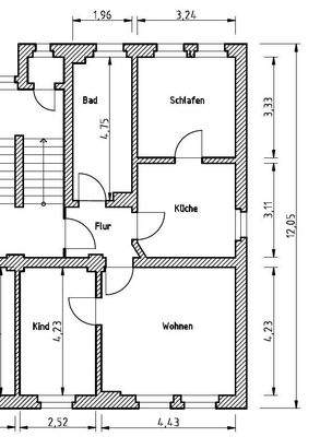
Objektbeschreibung
Ab sofort wartet diese tolle 3-Raum-Wohnung auf neue Mieter.
Die Wohnung befindet sich im 1. Obergeschoss eines sanierten Mehrfamilienhauses und wurde komplett renoviert.
Die Böden sind mit modernem Laminatboden ausgestattet, das Bad ist gefliest.
Über den zentralen Flur gelangen Sie in das Tageslichtbad mit Wanne...
Ausstattung
- 3-Raum-Wohnung 63 m²
- 1. Obergeschoss
- Tageslichtbad mit Wanne
- neuer Laminatboden
- Fliesen
- Kellerabteil
- Dachboden
Weitere Informationen
Sonstiges
Kaution: 2 Kaltmieten
Gern können Sie per Mail oder telefonisch unter Tel.: 0173 2643572 einen Besichtigungstermin vereinbaren.
Folgende Unterlagen werden für einen Mietvertrag benötigt:
. Einkommensnachweis (bspw.: Lohn-, Rentennachweis)
. Mietschuldenfreiheitsbestätigung (Vordrucke können Sie...
Anbieter der Immobilie
Online-ID: 2mf7m5j
Referenznummer: 8592
Finde Angebote wie dieses
Hier geht es zu unserem Impressum, den Allgemeinen Geschäftsbedingungen, den Hinweisen zum Datenschutz und nutzungsbasierter Online-Werbung.