
RUHR REAL GmbH
Herr Niklas Lendzian
+49 ···
Nr. anzeigenPreise & Kosten
zzgl. Nebenkosten
Provision für Mieter
3-4 Nettomonatsmieten
Warum sehe ich diese Anzeige? – Du siehst diese Anzeige basierend auf Ihrer Navigation auf unserer Website und den Suchkriterien, die du verwendet hast.
Lage
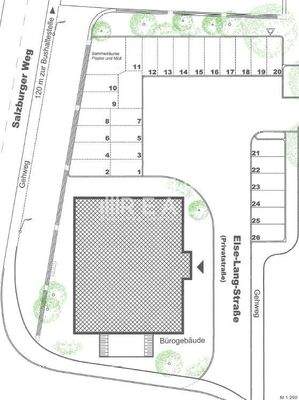
Die Liegenschaft liegt in Köln-Junkersdorf (Else-Lang-Straße 1, 50858 Köln) mit sehr guter Anbindung: Die Straßenbahn Linie 7 (Haltestelle Köln Stüttgenhof) ist ca. 1,7 km entfernt, die Buslinien 143/173 (Haltestelle Wiener Weg) erreicht man nach ca. 550 m. Über die A4 / Kreuz Köln-West (ca. 2,3 km) besteht schneller...
Büro-/Praxisfläche
Kategorie
Bürofläche
Baujahr
2002
Bezug
01.02.2026
Energie & Heizung
Warum sehe ich diese Anzeige? – Du siehst diese Anzeige basierend auf Ihrer Navigation auf unserer Website und den Suchkriterien, die du verwendet hast.
Weitere Energiedaten
Energieträger
Fernwärme
Details
Objektbeschreibung
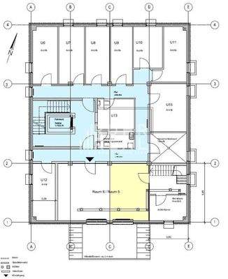
Das Bürogebäude (Baujahr 2003) bietet im 1. Obergeschoss eine zusammenhängende Bürofläche von ca. 295,5 m² sowie ca. 17 m² Archivfläche. Die Fläche ist modern ausgestattet: CAT-6-Verkabelung und Bodentanks sichern eine flexible Arbeitsplatzzone; bodentiefe Fenster bringen viel Tageslicht, außen- und innenliegender...
Ausstattung
. Personenaufzug
. CAT-6-Verkabelung
. Bodentanks
. Glastüren
. Außenliegender Sonnenschutz
.
Innenliegender Blendschutz
. 2 Teeküchen
. 5 Außenstellplätze Nr. 13 / 14 / 15 / 16 / 23
. Archivraum U 6 mit 15,5 m² 7,00 EUR pro qm netto
. Archivraum U 15 mit 17,1 m² 7,00 EUR pro qm netto
Preisinformation
Nettokaltmiete: 15,00 EUR
Weitere Informationen
Sonstiges
Es gelten ausschließlich unsere AGB (www.ruhr-real.de/agb). Wir möchten Sie darauf hinweisen, dass die Angaben ausschließlich auf den uns vom Eigentümer übermittelten Unterlagen und Informationen basieren. Für Richtigkeit und Vollständigkeit übernehmen wir keine Gewähr. Zwischenvermietung...
Anbieter der Immobilie

RUHR REAL GmbH
Holsterhauser Platz 2, 45147 Essen
Online-ID: 2mf8358
Referenznummer: 4658/G1/E1
Finde Angebote wie dieses
Hier geht es zu unserem Impressum, den Allgemeinen Geschäftsbedingungen, den Hinweisen zum Datenschutz und nutzungsbasierter Online-Werbung.