

Kraft Immobilien
Herrn Korbinian Kraft
085 ···
Nr. anzeigenPreise & Kosten
Provision für Mieter
1,19 Kaltmieten inkl. 19% MwSt.
Warum sehe ich diese Anzeige? – Du siehst diese Anzeige basierend auf Ihrer Navigation auf unserer Website und den Suchkriterien, die du verwendet hast.
Lage
1A-Lage
Das Objekt befindet sich in der Spitalhofstraße in 94032 Passau, in gut erreichbarer, gewerblich geprägter Lage mit hervorragender Verkehrsanbindung. Die Bundesstraße B12 sowie die Autobahn A3 sind schnell erreichbar. Einkaufsmöglichkeiten, Nahverkehrsanschlüsse und Versorgungsbetriebe befinden sich in...
Die Ladenfläche
Kategorie
Verkaufsfläche
Baujahr
1966
Bezug
ab sofort
1. Geschoss
Energie & Heizung
Warum sehe ich diese Anzeige? – Du siehst diese Anzeige basierend auf Ihrer Navigation auf unserer Website und den Suchkriterien, die du verwendet hast.
Weitere Energiedaten
Energieträger
Gas
Heizungsart
Zentralheizung
Details
Objektbeschreibung
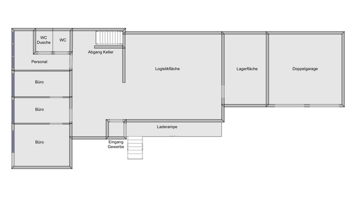
Vielseitig nutzbare Gewerbeeinheit mit Büroflächen, Laderampe, Außenstellplätzen und LKW-Garagen in verkehrsgünstiger Lage von Passau
Objektbeschreibung:
Diese vielseitig nutzbare Gewerbefläche eignet sich ideal für Spedition, Logistik oder lagerbezogene Dienstleistungen - kombiniert mit mehreren Büroräumen und...
Weitere Informationen
Sonstiges
Haben wir Ihr Interesse geweckt? Dann nutzen Sie bitte das Kontaktformular in der Anzeige und schreiben uns darüber eine E-Mail. Ein ausführliches Exposé senden wir Ihnen gerne nach vollständiger Kontaktanfrage.
Alle Angaben in diesem Exposé wurden sorgfältig und so vollständig wie möglich erstellt. Die...
Anbieter der Immobilie
Kraft Immobilien
Dr.-Geiger-Weg 4, 94032 Passau

Online-ID: 2mf935p
Referenznummer: 25-GM-14
Finde Angebote wie dieses
Hier geht es zu unserem Impressum, den Allgemeinen Geschäftsbedingungen, den Hinweisen zum Datenschutz und nutzungsbasierter Online-Werbung.