
EB IMMOBILIENMANAGEMENT GmbH
Frau Viktoria Komnik
Kontaktiere den Anbieter schriftlich, es ist keine Telefonnummer hinterlegt.
Preise & Kosten
Kaution
3 Nettokaltmieten
Provision für Mieter
provisionsfrei
Warum sehe ich diese Anzeige? – Du siehst diese Anzeige basierend auf Ihrer Navigation auf unserer Website und den Suchkriterien, die du verwendet hast.
Lage
Das Ladengeschäft befindet sich in der Rudolf-Renner-Straße 51 im Dresdner Stadtteil Löbtau, einem etablierten und stark nachgefragten Wohn- und Geschäftsgebiet im westlichen Stadtgebiet von Dresden.
Die Rudolf-Renner-Straße ist eine gut frequentierte Verbindungsstraße mit gemischter Bebauung aus Wohn- und Geschäftshäusern...
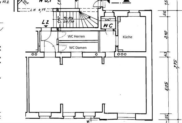
Die Ladenfläche
Kategorie
Laden
Baujahr
1903
Bezug
sofort
Energie & Heizung
Warum sehe ich diese Anzeige? – Du siehst diese Anzeige basierend auf Ihrer Navigation auf unserer Website und den Suchkriterien, die du verwendet hast.
Wärme
Energieausweistyp
Verbrauchsausweis
Gebäudetyp
Nicht-Wohngebäude
Endenergieverbrauch (Wärme)
120,30 kWh/(m²·a)
Weitere Energiedaten
Energieträger
Gas
Heizungsart
Zentralheizung
Details
Objektbeschreibung
Das angebotene Ladengeschäft befindet sich im Erdgeschoss eines gepflegten Wohn- und Geschäftshauses in der Rudolf-Renner-Straße 51 im Dresdner Stadtteil Löbtau, einem etablierten und lebendigen Quartier von Dresden.
Die Gewerbeeinheit verfügt über eine gut geschnittene Verkaufsfläche mit großzügiger Schaufensterfront zur...
Weitere Informationen
Sonstiges
Die Miete und die Nebenkosten verstehen sich zuzüglich der gesetzlich vorgeschriebenen Mehrwertsteuer und für eine Anmietung im Istzustand der Mietflächen. Bitte sprechen Sie uns bei Fragen zur Ausstattung oder eines Investitionsbedarfs gesondert an.
Stichworte
Gesamtfläche: 71,00 m², Distanz zum...
Anbieter der Immobilie

EB IMMOBILIENMANAGEMENT GmbH
Zimmerstraße 26/27, 10969 Berlin
Frau Viktoria Komnik
Dein Ansprechpartner
Kontaktiere den Anbieter schriftlich, es ist keine Telefonnummer hinterlegt.
Online-ID: 2mfam5y
Referenznummer: 51912.200205-RR51-EG
Finde Angebote wie dieses
Hier geht es zu unserem Impressum, den Allgemeinen Geschäftsbedingungen, den Hinweisen zum Datenschutz und nutzungsbasierter Online-Werbung.