

Stein & Co Vermögensverwaltung GmbH
Herr Bernd Raeuber
033 ···
Nr. anzeigenPreise & Kosten
Provision für Käufer
provisionsfrei
Lage
Der Ort Borkwalde liegt im Landkreis Potsdam-Mittelmark, inmitten eines ausgedehnten Waldgebietes.
Borkwalde ist ca. 49 km Luftlinie von Berlin entfernt.
Durch die wenige Kilometer entfernten Bundesautobahnen A 9 (München- Berlin) A 10 (Berliner Ring) A 2 (Berlin - Hannover) hat man sehr gute Verkehrsanbindungen in die...
Die Wohnung
Wohnungslage
2. Geschoss
Bezug
sofort
Wohnanlage
Energie & Heizung
Warum sehe ich diese Anzeige? – Du siehst diese Anzeige basierend auf Ihrer Navigation auf unserer Website und den Suchkriterien, die du verwendet hast.
Energieausweistyp
Verbrauchsausweis
Gebäudetyp
Wohngebäude
Baujahr laut Energieausweis
1993
Wesentliche Energieträger
Gas
Gültigkeit
01.12.2024 bis 01.12.2034
Effizienzklasse
C
Endenergieverbrauch
91,50 kWh/(m²·a) - Warmwasser enthalten
Weitere Energiedaten
Energieträger
Gas
Heizungsart
Zentralheizung
Details
Objektbeschreibung
13.12.25 Besichtigung am Samstag um 13:00 Uhr möglich. Vielen Dank für Ihre Terminbestätigung.
Leerwohnung: Ein Einzug ist sofort möglich, die Mieter sind ausgezogen.
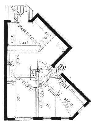
Die Etagenwohnung mit einer Wohnfläche von 62,39 m² befindet sich in einem gepflegten Gebäude aus dem Jahre 1993, welches über insgesamt drei Etagen...
Ausstattung
. Wohnzimmer, 1
. Schlafzimmer, 1
. Balkon
. Küche
. Bad mit Badewanne und Fenster
. Mieterkeller mit Stromversorgung (Licht und Steckdose)
. Gemeinschaftskeller Fahrradkeller
. Gemeinschaftskeller Trockenraum
Weitere Informationen
Sonstiges
Keine Provision für Kaufende bei Stein & Co.
Die Wohnung ist nicht mehr vermietet.
Selbstnutzer können sofort ohne die Probleme einer Kündigung wegen Eigenbedarf einziehen.
Detaillierte Informationen zur Eigentumswohnanlage, Miteigentumsanteilen, Hausgeldzahlungen, Erhaltungsrücklage...
Dokumente
Anbieter der Immobilie

Stein & Co Vermögensverwaltung GmbH

Online-ID: 2mfb35l
Referenznummer: 9245#8l0iiL
Finde Angebote wie dieses
Hier geht es zu unserem Impressum, den Allgemeinen Geschäftsbedingungen, den Hinweisen zum Datenschutz und nutzungsbasierter Online-Werbung.