
NEXT Immobilien GmbH
Frau Emelie Hemmelmeir
+43 ···
Nr. anzeigenPreise & Kosten
Provision für Käufer
3% des Kaufpreises zzgl. 20% USt.
Die Wohnung
Bezug
01.04.2026
Wohnanlage
Energie & Heizung
Warum sehe ich diese Anzeige? – Du siehst diese Anzeige basierend auf Ihrer Navigation auf unserer Website und den Suchkriterien, die du verwendet hast.
Heizwärmebedarf (HWB)
45,40 kWh/(m²·a)
Gesamtenergieeffizienz (fGEE)
0,75
Weitere Energiedaten
Energieträger
Erdwärme, Gas
Heizungsart
Zentralheizung
Details
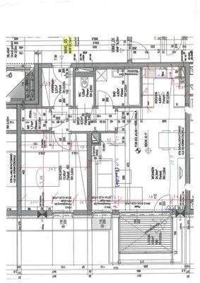
Objektbeschreibung
Moderne 2-Zimmer-Wohnung mit Loggia und Tiefgaragenplatz in Gramastetten zu verkaufen!
Diese großzügige Wohnung umfasst eine Nutzfläche von ca. 63,02m² und befindet sich in einem modernen 2009 errichteten Wohngebäude. Die Wohnung ist barrierefrei zugänglich und ein Lift ist vorhanden.
Vom zentralen Vorraum aus...
Preisinformation
1 Garagenstellplatz
Weitere Informationen
Stichworte
Tiefgarage vorhanden, Süd-West-Balkon/Terrasse, Nutzfläche: 63,02 m², Anzahl Loggias: 1, Balkon-Terrassen-Fläche: 4,91 m², Bundesland: Oberösterreich, Wohnungsnr.: 5
Anbieter der Immobilie
NEXT Immobilien GmbH
Meinhartweg 3, 4020 LINZ
Online-ID: 2mfb759
Referenznummer: OBGC2025093010443665345711a1d1c
Finde Angebote wie dieses
Günstige Immobilienfinanzierung einfach online berechnen
Persönliches Angebot berechnenWarum sehe ich diese Werbung? – Du siehst diese Werbung basierend auf Deiner Navigation auf unserer Website und der von Dir verwendeten Suchkriterien.
Diese Werbung wird bezahlt von durchblicker
Werbung melden
Hier geht es zu unserem Impressum, den Allgemeinen Geschäftsbedingungen, den Hinweisen zum Datenschutz und nutzungsbasierter Online-Werbung.