

Wohnen in Vorpommern GmbH
Herr Sören Schuldt
038 ···
Nr. anzeigenPreise & Kosten
Kaution
1.020,00
Warum sehe ich diese Anzeige? – Du siehst diese Anzeige basierend auf Ihrer Navigation auf unserer Website und den Suchkriterien, die du verwendet hast.
Lage
Kühlungsborn, Pfarrweg 7
Die Wohnung
Bezug
01.04.2026
Energie & Heizung
Warum sehe ich diese Anzeige? – Du siehst diese Anzeige basierend auf Ihrer Navigation auf unserer Website und den Suchkriterien, die du verwendet hast.
Energieausweistyp
Verbrauchsausweis
Gebäudetyp
Wohngebäude
Baujahr laut Energieausweis
1989
Wesentliche Energieträger
Gas
Gültigkeit
bis 13.11.2030
Effizienzklasse
E
Endenergieverbrauch
136,60 kWh/(m²·a)
Weitere Energiedaten
Energieträger
Gas
Heizungsart
Zentralheizung
Details
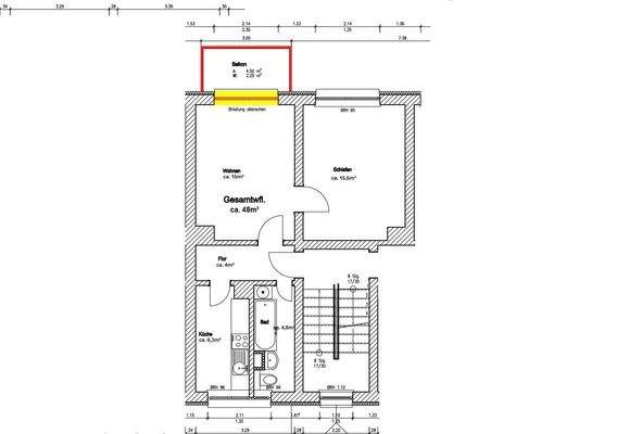
Objektbeschreibung
Die Wohnung verfügt über 2 Zimmer, einen separaten Küchenbereich und einen Balkon. Sie ist vor einigen Jahren zeitgemäß modernisiert worden.
Highlights im Überblick:
- heller u. freundlicher Laminatfußboden
- modernisiertes Bad mit Fenster und Badewanne
- großzügiger Balkon
- Stellplätze vor dem Haus...
Preisinformation
Nettokaltmiete: 510,00 EUR
Weitere Informationen
Sonstiges
Online-Streitbeilegung gemäß Art. 14 Abs. 1 ODR-VO: Die Europäische Kommission stellt unter https://ec.europa.eu/consumers/odr/main/index.cfm eine Plattform zur Online-Streitbeilegung (OS) bereit.
Verbraucherinformationen - https://ec.europa.eu/consumers/odr/main/index.cfm
Stichworte
Anzahl...
Anbieter der Immobilie

Online-ID: 2mfb75y
Referenznummer: 0186
Finde Angebote wie dieses
Hier geht es zu unserem Impressum, den Allgemeinen Geschäftsbedingungen, den Hinweisen zum Datenschutz und nutzungsbasierter Online-Werbung.