
Eichenlaub & Dumont Immobilien e.K.
Herr Sascha Hertel
004 ···
Nr. anzeigenPreise & Kosten
Provision für Käufer
Bitte beachte, das Angebot kann bei Vertragsabschluss die Zahlung einer Provision beinhalten. Weitere Informationen erhältst Du vom Anbieter.
Lage
Die Verbandsgemeinde Spiesen-Elversberg, bestehend aus den namensgebenden Ortsteilen, liegt verkehrsgünstig in der Nähe zur Biosphärenstadt St. Ingbert.
Auch die Anbindung an die saarländische Landeshauptstadt Saarbrücken und den Industriestandort Neunkirchen ist durch die Autobahnzubringer zur A8 und A6...
Die Wohnung
Bezug
2026 Fertigstellung
Wohnanlage
Energie & Heizung
Warum sehe ich diese Anzeige? – Du siehst diese Anzeige basierend auf Ihrer Navigation auf unserer Website und den Suchkriterien, die du verwendet hast.
Weitere Energiedaten
Heizungsart
Luft-/Wasser-Wärmepumpe, Zentralheizung
Details
Objektbeschreibung
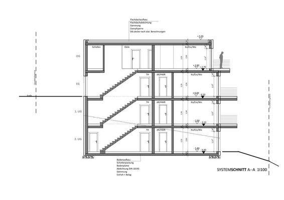
In Spitzenlage von Spiesen-Elversberg, befindet sich der energetisch nach neuestem Standard errichtete Neubau mit nur 4 Wohneinheiten. Das Gebäude wird im Jahr 2026 schlüsselfertig errichtet.
Diese nun noch verfügbare Wohnung im Gartengeschoss bietet den zukünftigen Bewohnern mit 2 Zimmern, Küche, Bad, Abstellraum und...
Ausstattung
Neuwertige Wohnung in Effizienzhaus
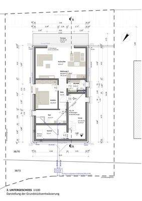
Wohnung 1 im UG2, Gartengeschoss
Außenstellplatz optional verfügbar (12.000 €)
Tolle Lage im Neubaugebiet
Balkon mit Panorama-Weitblick
Ausstattungs-Highlights:
Luft-Wärmepumpe mit Warmwasseraufbereitung
3-fach verglaste...
Preisinformation
1 Stellplatz, Kaufpreis: 12.000,00 EUR
Weitere Informationen
Sonstiges
Selbstverständlich stehen wir Ihnen gerne mit weiteren Objektinformationen und für Besichtigungen zur Verfügung.
Alle im Exposé genannten Objektangaben und Informationen beruhen auf Angaben des Auftraggebers. Für die Richtigkeit und Vollständigkeit wird keine Haftung übernommen.
Hinweis zum...
Anbieter der Immobilie
Eichenlaub & Dumont Immobilien e.K.
Auf dem Kohlberg 7, 66133 Saarbrücken
Online-ID: 2mfbu5z
Referenznummer: VK - NBS UG2 - S
Finde Angebote wie dieses
Weitere Immobilien
Hier geht es zu unserem Impressum, den Allgemeinen Geschäftsbedingungen, den Hinweisen zum Datenschutz und nutzungsbasierter Online-Werbung.