
IM Lifestyle Properties GmbH
Herr Christian Kiedl
+43 ···
Nr. anzeigenPreise & Kosten
Provision für Käufer
3% des Kaufpreises zzgl. 20% USt.
Das Haus
Kategorie
Villa
Baujahr
2005
Energie & Heizung
Warum sehe ich diese Anzeige? – Du siehst diese Anzeige basierend auf Ihrer Navigation auf unserer Website und den Suchkriterien, die du verwendet hast.
Heizwärmebedarf (HWB)
98,00 kWh/(m²·a)
Gesamtenergieeffizienz (fGEE)
1,67
Weitere Energiedaten
Haustyp
Massivhaus
Energieträger
Holz, Öl
Heizungsart
Fußbodenheizung, offener Kamin, Zentralheizung
Details
Objektbeschreibung
_Im Falle der Notwendigkeit einer Fremdfinanzierung Ihrer Wunschimmobilie ermittelt unser Wohnbau-Finanzierungsexperte gerne die optimale Finanzierungslösung und findet das passende Zins- und Konditionsangebot für Sie. Er vergleicht die aktuellen Angebote aller relevanten Banken und Bausparkassen. Der Angebotsvergleich kann...
Preisinformation
3 Stellplätze
1 Garagenstellplatz
Weitere Informationen
Stichworte
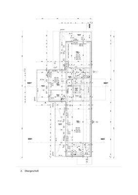
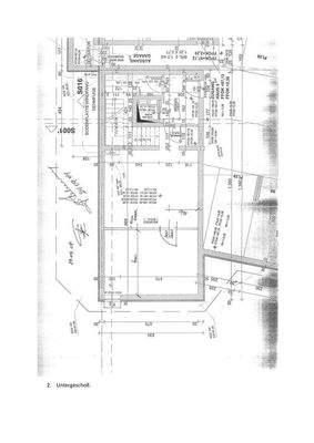
Garage vorhanden, Tiefgarage vorhanden, Ost-Süd-Süd-Ost-Süd-West-West-Balkon/Terrasse, Fahrradraum, Nutzfläche: 645,07 m², Anzahl der Badezimmer: 4, Anzahl der separaten WCs: 5, Anzahl Balkone: 1, Anzahl Terrassen: 5, Balkon-Terrassen-Fläche: 123,83 m², Kellerfläche: 226,19 m², Bundesland: Wien, 3...
Anbieter der Immobilie
IM Lifestyle Properties GmbH
Stock-im-Eisen-Platz 3/26, 1010 WIEN
Online-ID: 2mfce5d
Referenznummer: OBGC2023092721050629266f0d8ef4b
Finde Angebote wie dieses
Günstige Immobilienfinanzierung einfach online berechnen
Persönliches Angebot berechnenWarum sehe ich diese Werbung? – Du siehst diese Werbung basierend auf Deiner Navigation auf unserer Website und der von Dir verwendeten Suchkriterien.
Diese Werbung wird bezahlt von durchblicker
Werbung melden
Hier geht es zu unserem Impressum, den Allgemeinen Geschäftsbedingungen, den Hinweisen zum Datenschutz und nutzungsbasierter Online-Werbung.