

Safe Select Immobilien und Baufinanzierung
Herr Arwid Walker
+49 ···
Nr. anzeigenPreise & Kosten
Provision für Käufer
1,9% inkl. MwSt. inkl. MwSt.
Lage
Die angebotene Etagenwohnung befindet sich in einem der begehrtesten Stadtteile im Süden Stuttgarts. Eingebettet in eine grüne und ruhige Umgebung, bietet der Stadtteil eine harmonische Mischung aus städtischem Komfort und naturnaher Entspannung. Die Nachbarschaft zeichnet sich durch eine hervorragende Anbindung an den...
Die Wohnung
Wohnungslage
Erdgeschoss
Wohnanlage
Energie & Heizung
Warum sehe ich diese Anzeige? – Du siehst diese Anzeige basierend auf Ihrer Navigation auf unserer Website und den Suchkriterien, die du verwendet hast.
Energieausweistyp
Verbrauchsausweis
Gebäudetyp
Wohngebäude
Baujahr laut Energieausweis
2014
Wesentliche Energieträger
GAS
Gültigkeit
bis 23.04.2034
Effizienzklasse
B
Endenergieverbrauch
51,70 kWh/(m²·a)
Weitere Energiedaten
Energieträger
Gas
Heizungsart
Fußbodenheizung
Details
Objektbeschreibung
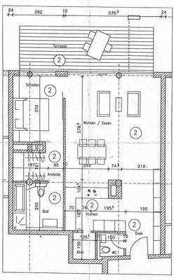
Willkommen in Ihrem neuen Zuhause: Eine neuwertige Etagenwohnung in Stuttgart, erbaut im Jahr 2014, erwartet Sie. Diese moderne Wohnung besticht durch eine großzügige Wohnfläche von ca. 84 m² und bietet zudem eine Nutzfläche von ca. 6 m². Mit 2,5 Zimmern, darunter ein Schlafzimmer und ein Badezimmer, erfüllt diese Immobilie...
Preisinformation
1 Tiefgaragenstellplatz, Kaufpreis: 27.000,00 EUR
Weitere Informationen
Sonstiges
- Energieausweis: Verbrauchsausweis
- Baujahr laut Energieausweis: 2014
- Wesentlicher Energieträger: Gas
- Große Terrasse mit 26 m² und kleinem Gartenanteil
- Fußbodenheizung für wohlige Wärme
- 31,595 kWp Photovoltaikanlage für nachhaltige Energieversorgung
- 22,4 kW Batterie zur...
Anbieter der Immobilie
Safe Select Immobilien und Baufinanzierung
Biberacher Str. 18, 88444 Ummendorf

Online-ID: 2mffp59
Referenznummer: 113
Finde Angebote wie dieses
Hier geht es zu unserem Impressum, den Allgemeinen Geschäftsbedingungen, den Hinweisen zum Datenschutz und nutzungsbasierter Online-Werbung.