

CENTURY 21 Hofmann Immobilien
Frau Gabriele Hofmann
076 ···
Nr. anzeigenPreise & Kosten
Provision für Käufer
Bitte beachte, das Angebot kann bei Vertragsabschluss die Zahlung einer Provision beinhalten. Weitere Informationen erhältst Du vom Anbieter.
Lage
Die Immobilie befindet sich in einer besonders familienfreundlichen Wohnlage am Innenstadtrand von Rheinfelden - in der verkehrsberuhigten Friedrich-Jung-Straße, einer ruhigen Sackgasse ohne Durchgangsverkehr. Das gepflegte Wohnumfeld ist geprägt von Ein- und Zweifamilienhäusern, gewachsenen Nachbarschaften und einer...
Das Haus
Kategorie
Mehrfamilienhaus
Baujahr
1964
Energie & Heizung
Warum sehe ich diese Anzeige? – Du siehst diese Anzeige basierend auf Ihrer Navigation auf unserer Website und den Suchkriterien, die du verwendet hast.
Energieausweistyp
Bedarfsausweis
Gebäudetyp
Wohngebäude
Baujahr laut Energieausweis
1964
Wesentliche Energieträger
FERN
Effizienzklasse
D
Endenergiebedarf
126,10 kWh/(m²·a)
Weitere Energiedaten
Energieträger
Fernwärme
Details
Objektbeschreibung
In ruhiger und dennoch zentraler Innenstadtrandlage von Rheinfelden (Baden) erwartet Sie dieses außergewöhnliche, freistehende Zweifamilienhaus - ein echtes Wohnjuwel für anspruchsvolle Eigentümer, die Wert auf Qualität, Komfort und eine hervorragende Lage legen.
Das im Jahr 1964 erbaute und fortlaufend modernisierte...
Ausstattung
Heizung: Regenerative Fernwärme (seit 2023)
PV-Anlage: 9,8 kWp (23 Module) mit 12,8 kWh Batteriespeicher
Dach: Neueindeckung 2024, Dachdämmung (2007-2010), neue Dachliegefenster mit elektrischen Außenrollos (2022)
Fenster: ca. 75 % 3-fach verglast (2007-2010), restlich 2-fach verglast
Fassade: teilgedämmt (Nord-...
Preisinformation
1 Stellplatz
2 Garagenstellplätze
Weitere Informationen
Sonstiges
Sämtliche Angaben zu diesem Objekt dienen einer ersten Information.
Das Exposé zu diesem Angebot und die darin gemachten Angaben in Wort, Bild und Werten stellen keine Beschaffenheitsvereinbarung dar.
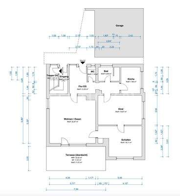
Die Aufteilung entnehmen Sie bitte den beigefügten Grundrissskizzen (unverbindliche...
Anbieter der Immobilie

Online-ID: 2mffv52
Referenznummer: C21_THOF_44658
Finde Angebote wie dieses
Hier geht es zu unserem Impressum, den Allgemeinen Geschäftsbedingungen, den Hinweisen zum Datenschutz und nutzungsbasierter Online-Werbung.