
Crozilla.com
Dogma nekretnine
+38 ···
Nr. anzeigenPreise & Kosten
Provision für Käufer
Bitte beachte, das Angebot kann bei Vertragsabschluss die Zahlung einer Provision beinhalten. Weitere Informationen erhältst Du vom Anbieter.
Die Wohnung
Wohnungslage
2. Geschoss
Wohnanlage
Details
Objektbeschreibung
ID CODE: DA100062374
Filip Panduric
Agent s licencom
Mob: 099/337-5980
Tel: 052 645 444
E-mail: filip.panduric@dogma-nekretnine.com
www.dogma-istra.com
Karlo Sestan
Asistent u posredovanju
Mob: 091/361-1922
Tel: 052 770 811
E-mail...
Weitere Informationen
Stichworte
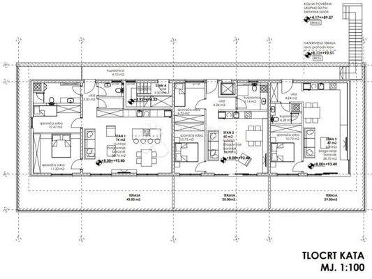
Anzahl der Schlafzimmer: 3, Anzahl der Badezimmer: 2, 1 Etagen
Anbieter der Immobilie
Crozilla.com
Nova cesta 60, 10000 ZAGREB
Online-ID: 2mffy5e
Referenznummer: 18670171_0
Finde Angebote wie dieses
Hier geht es zu unserem Impressum, den Allgemeinen Geschäftsbedingungen, den Hinweisen zum Datenschutz und nutzungsbasierter Online-Werbung.