
Living Blue Mallorca
971 ···
Nr. anzeigenPreise & Kosten
Provision für Käufer
Bitte beachte, das Angebot kann bei Vertragsabschluss die Zahlung einer Provision beinhalten. Weitere Informationen erhältst Du vom Anbieter.
Das Haus
Baujahr
0
Energie & Heizung
Warum sehe ich diese Anzeige? – Du siehst diese Anzeige basierend auf Ihrer Navigation auf unserer Website und den Suchkriterien, die du verwendet hast.
Weitere Energiedaten
Heizungsart
offener Kamin
Details
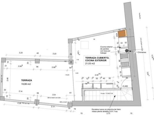
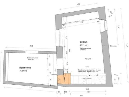
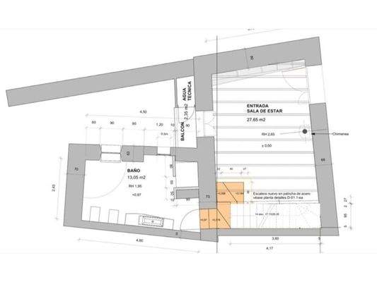
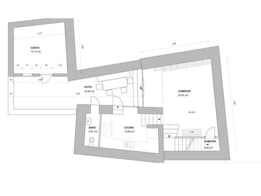
Objektbeschreibung
Dieses Stadthaus liegt im Herzen von Fornalutx, einem der malerischsten Dörfer Mallorcas, das bereits mehrfach als schönstes Dorf Spaniens ausgezeichnet wurde. Das Anwesen verbindet charmante Architektur mit einer ruhigen Lage und bietet eine unverwechselbare Atmosphäre inmitten der Tramuntana.
Die Wohnfläche erstreckt...
Weitere Informationen
Stichworte
Anzahl der Schlafzimmer: 2, Anzahl der Badezimmer: 1, Anzahl Terrassen: 1, Bundesland: Mallorca
Anbieter der Immobilie
Online-ID: 2mfgu55
Referenznummer: 6807
Finde Angebote wie dieses
Hier geht es zu unserem Impressum, den Allgemeinen Geschäftsbedingungen, den Hinweisen zum Datenschutz und nutzungsbasierter Online-Werbung.