

Su Casita S.L.
Herr Jan Hannemann
+34 ···
Nr. anzeigenPreise & Kosten
Provision für Käufer
provisionsfrei
Das Haus
Kategorie
Villa
Baujahr
1973
Energie & Heizung
Warum sehe ich diese Anzeige? – Du siehst diese Anzeige basierend auf Ihrer Navigation auf unserer Website und den Suchkriterien, die du verwendet hast.
Energieausweistyp
Bedarfsausweis
Gebäudetyp
Wohngebäude
Effizienzklasse
C
Weitere Energiedaten
Heizungsart
offener Kamin
Details
Objektbeschreibung
Diese elegant im modernen bzw. im ibiza-Stil renovierte Villa mit fantastischem Meerblick befindet sich in der begehrten Wohngegend von Cala Advocat an der Costa Blanca, nur 9 Autominuten vom charmanten Küstenort Moraira entfernt.
Nach einer kompletten Renovierung verbindet die Immobilie mediterranen Charme mit...
Preisinformation
1 Carportplatz
1 Stellplatz
Weitere Informationen
Stichworte
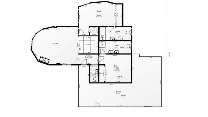
Anzahl der Schlafzimmer: 4, Anzahl der Badezimmer: 4, Anzahl Terrassen: 4, Bundesland: Valencia, Lage im Wohngebiet
Anbieter der Immobilie
Su Casita S.L.
Calle Atenas, 59, 03177 San Fulgencio / SPANIEN

Online-ID: 2mfhb5d
Referenznummer: BENI-BE.H-926
Finde Angebote wie dieses
Hier geht es zu unserem Impressum, den Allgemeinen Geschäftsbedingungen, den Hinweisen zum Datenschutz und nutzungsbasierter Online-Werbung.