

EDE INVEST GmbH & Co. KG
Frau Susanne Dettinger-Klemm
+49 ···
Nr. anzeigenPreise & Kosten
Provision für Käufer
PROVISIONSFREI ! inkl. MwSt.
Lage
Im Südwesten von München, am östlichen Hochufer des Würmtals, liegt dieses beeindruckende Anwesen in einer der schönsten Lagen von Gauting. Der Ortskern von Gauting bietet alles was eine Großstadt bietet, nur "direkt vor der Haustür" und ist in wenigen Schritten zu Fuß erreichbar.
Durch die hervorragende Lage...
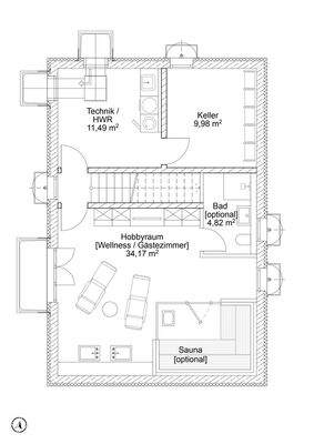
Das Haus
Kategorie
Einfamilienhaus
Baujahr
2027
Bezug
Spätherbst 2027
Energie & Heizung
Warum sehe ich diese Anzeige? – Du siehst diese Anzeige basierend auf Ihrer Navigation auf unserer Website und den Suchkriterien, die du verwendet hast.
Energieausweistyp
Verbrauchsausweis
Gebäudetyp
Wohngebäude
Baujahr laut Energieausweis
2025
Gültigkeit
bis 06.03.2035
Effizienzklasse
A
Endenergieverbrauch
49,90 kWh/(m²·a)
Weitere Energiedaten
Heizungsart
Fußbodenheizung, Luft-/Wasser-Wärmepumpe
Details
Objektbeschreibung
Pure Lebensfreude im eigenen Zuhause mit Villencharakter
In einer der begehrtesten Straßen der Gautinger Villenkolonie entstehen zwei exklusive Einfamilienhäuser, die modernes Design mit einem Hauch von klassischem Villenflair vereinen. Hier finden Sie alles, was das Herz begehrt - von großzügigen Grundrissen bis hin...
Ausstattung
- In Massivbauweise
- Ziegelmauerwerk mit 36,5 cm Außenwände
- Innenwände Ziegelmauerwerk/Trockenbauwand mit 17 cm bzw. 11,5 cm
- Dachflächenfenster von Velux o.a.
- Bodentiefe Fenster wo möglich
- Elektrische Rollläden
- Dreifach wärmeschutzverglaste Fenster
- Sanitäreinrichtungen von...
Preisinformation
1 Garagenstellplatz, Kaufpreis: 25.000,00 EUR
Weitere Informationen
Sonstiges
Alle in diesem Exposé verwendeten Angaben beruhen auf Informationen von Dritten (z.B. Eigentümer, Hausverwaltung, etc.) und daher freibleibend und ohne jegliche Gewähr. Zahlenangaben sind immer als ca-Angaben zu verstehen. Irrtum, Änderungen, Zwischenverkauf oder Zwischenvermietung bleiben vorbehalten. Die...
Dokumente
Anbieter der Immobilie
EDE INVEST GmbH & Co. KG
Bavariaring 18, 80336 München

Online-ID: 2mfhm5f
Referenznummer: 3200_39
Finde Angebote wie dieses
Hier geht es zu unserem Impressum, den Allgemeinen Geschäftsbedingungen, den Hinweisen zum Datenschutz und nutzungsbasierter Online-Werbung.