
ohne-makler.net - Immobilien selbst vermarkten
Privat vom Eigentümer
Kontaktiere den Anbieter schriftlich, es ist keine Telefonnummer hinterlegt.
Preise & Kosten
nicht in Warmmiete enthalten
Kaution
2.730,00
Warum sehe ich diese Anzeige? – Du siehst diese Anzeige basierend auf Ihrer Navigation auf unserer Website und den Suchkriterien, die du verwendet hast.
Lage
Die Penthouse Wohnung befindet sich auf einem Firmengebäude am Rande des Gewerbegebiets Brötzinger Tal mit Blick auf den Schwarzwald und den Fluss Enz.
Die Bushaltestelle befindet sich vor der Haustüre. Der Stadt-Bahn Anschluss Birkenfeld ist in 5 Minuten zu Fuß erreichbar.
Infrastruktur (im Umkreis von 5...
Die Wohnung
Kategorie
Penthouse
Wohnungslage
2. Geschoss
Bezug
sofort
Wohnanlage
Energie & Heizung
Warum sehe ich diese Anzeige? – Du siehst diese Anzeige basierend auf Ihrer Navigation auf unserer Website und den Suchkriterien, die du verwendet hast.
Weitere Energiedaten
Energieträger
Gas
Heizungsart
offener Kamin, Zentralheizung
Details
Objektbeschreibung
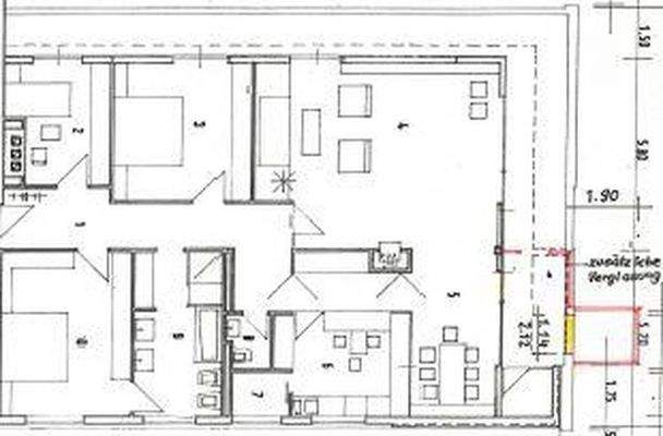
Helle 4-ZW mit gr. Fenstern, 121 m², Küche mit Durchreiche / Tresen und angrenzendem Essbereich. An SW Seite umlaufender Balkon. Vom Wintergarten aus kann ein Fahrstuhl genutzt werden. Großes Bad mit DU und BW, separates Gäste-WC. Die Whg. ist nahezu barrierefrei.
Ausstattung
Balkon, Wintergarten, Keller, Fahrstuhl, Vollbad, Duschbad, Einbauküche, Gäste-WC, Kamin, Barrierefrei, Fliesen
Preisinformation
1 Stellplatz
Nettokaltmiete: 1.365,00 EUR
Weitere Informationen
Sonstiges
Heizungsart: Zentralheizung
Energieträger: Gas
Energieausweis nicht vorhanden
Provisionsfrei vom Eigentümer. Aussagekräftige Anfragen werden bevorzugt behandelt.
Makleranfragen nicht erwünscht. Nach § 7 UWG sind unaufgeforderte Kontaktaufnahmen durch Makler ohne ausdrückliche Einwilligung des...
Anbieter der Immobilie
ohne-makler.net - Immobilien selbst vermarkten
Humboldtstr. 25 A, 21509 Glinde
Privat vom Eigentümer
Dein Ansprechpartner
Kontaktiere den Anbieter schriftlich, es ist keine Telefonnummer hinterlegt.
Online-ID: 2mfl45j
Referenznummer: 402777
Finde Angebote wie dieses
Hier geht es zu unserem Impressum, den Allgemeinen Geschäftsbedingungen, den Hinweisen zum Datenschutz und nutzungsbasierter Online-Werbung.