
Tecnorete Franchising Immobiliare AFFILIATO: Garda Est srl
Frau Silvia Fornalè
003 ···
Nr. anzeigenPreise & Kosten
Provision für Käufer
4% + ital. MwSt.
Das Haus
Baujahr
2005
Details
Objektbeschreibung
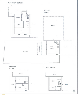
BARDOLINO: Nur wenige Schritte vom Ortszentrum entfernt, bieten wir eine interessante Eckreihenhaus mit einem privaten Garten von ca. 200 m² in einer Wohnanlage mit Swimmingpool an. Das Haus verfügt über einen separaten Fußgänger- und Fahrzeugzugang und erstreckt sich über vier Ebenen. Im Untergeschoss befinden sich zwei...
Weitere Informationen
Besichtigungstermine
Montag bis Freitag 9.00 - 13.00 und 15.00 - 19.30
Samstag 9.00 - 13.00 und 15.00 - 18.00
Sonntag geschlossen.
Anbieter der Immobilie
Tecnorete Franchising Immobiliare AFFILIATO: Garda Est srl
Via Petrarca 2, 37011 BARDOLINO
Online-ID: 2mflk5h
Finde Angebote wie dieses
Hier geht es zu unserem Impressum, den Allgemeinen Geschäftsbedingungen, den Hinweisen zum Datenschutz und nutzungsbasierter Online-Werbung.