
A8 Immobiliengruppe OHG
Frau Franziska Eisenreich
004 ···
Nr. anzeigenPreise & Kosten
Provision für Käufer
3,57% des Kaufpreises inkl. MwSt. inkl. MwSt.
Lage
Die Stadt Kolbermoor vereint auf besondere Weise urbanes Leben mit naturnaher Gelassenheit. Mit rund 19.000 Einwohnern bietet die charmante Stadt westlich von Rosenheim eine hervorragende Infrastruktur bei gleichzeitig angenehmer Überschaubarkeit. Familien profitieren von einem vielfältigen Angebot an Kindertagesstätten...
Die Wohnung
Kategorie
Penthouse
Wohnungslage
2. Geschoss
Wohnanlage
Energie & Heizung
Warum sehe ich diese Anzeige? – Du siehst diese Anzeige basierend auf Ihrer Navigation auf unserer Website und den Suchkriterien, die du verwendet hast.
Energieausweistyp
Verbrauchsausweis
Gebäudetyp
Wohngebäude
Baujahr laut Energieausweis
2001
Wesentliche Energieträger
GAS
Gültigkeit
bis 30.08.2028
Effizienzklasse
B
Endenergieverbrauch
72,00 kWh/(m²·a)
Weitere Energiedaten
Energieträger
Gas
Details
Objektbeschreibung
Diese weitläufige, unmittelbar bezugsfreie Penthousewohnung befindet sich in einer kleinen, gepflegten Wohnanlage mit nur fünf Einheiten und erstreckt sich über die zweite sowie dritte Ebene des Gebäudes. Die 2001 erbaute Immobilie liegt in ruhiger Wohnlage Kolbermoors und ist komfortabel durch eine Ringstraße ohne...
Ausstattung
Ausstattung:
- durchgängiger, heller Fliesenboden
- Fußbodenheizung
- große Fensterfronten
- Verschattung durch Rollläden (manuell bedienbar)
- Einbauküche mit Kochinsel
- Deckenspots im Kochbereich
- Bad mit Dusche
- Masterbad mit freistehender Badewanne, Doppelwaschtisch mit Einbauten, Bidet und...
Preisinformation
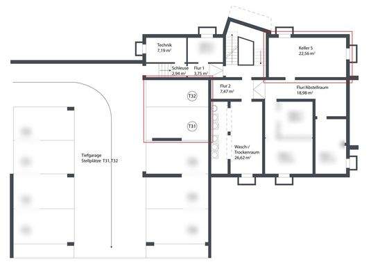
2 Tiefgaragenstellplätze, Kaufpreis je: 30.000,00 EUR
Weitere Informationen
Sonstiges
Alle Angaben sind ohne Gewähr und basieren ausschließlich auf Informationen, die uns von unserem Auftraggeber übermittelt wurden. Wir übernehmen keine Gewähr für die Vollständigkeit, Richtigkeit und Aktualität dieser Angaben. Zwischenverkauf bleibt vorbehalten. Die Weitergabe dieses Exposés an Dritte ohne unsere...
Anbieter der Immobilie
A8 Immobiliengruppe OHG
Heilig-Geist-Str. 23, 83022 Rosenheim
Online-ID: 2mfme57
Referenznummer: 396
Finde Angebote wie dieses
Hier geht es zu unserem Impressum, den Allgemeinen Geschäftsbedingungen, den Hinweisen zum Datenschutz und nutzungsbasierter Online-Werbung.