

Zirngibl Immobilien
Herr/Frau Fritz Zirngibl
089 ···
Nr. anzeigenPreise & Kosten
Provision für Käufer
3% Maklergebühr zzgl. 19% MWSt. = 3,57%
Lage
Die Immobilie liegt in einer zentralen und perfekt angebundenen Wohnlage von Bad Abbach. Einkaufsmöglichkeiten befinden sich direkt gegenüber: ein großer EDEKA-Markt, Bäckerei, Drogeriemarkt, Banken, Ärzte, Apotheken, Fitnessstudio und mehrere Restaurants liegen in unmittelbarer Nähe und sind bequem zu Fuß erreichbar. Ebenso...
Das Haus
Kategorie
Reihenhaus
Baujahr
1972
Bezug
01.08.2026
Energie & Heizung
Warum sehe ich diese Anzeige? – Du siehst diese Anzeige basierend auf Ihrer Navigation auf unserer Website und den Suchkriterien, die du verwendet hast.
Energieausweistyp
Verbrauchsausweis
Gebäudetyp
Wohngebäude
Baujahr laut Energieausweis
1972
Wesentliche Energieträger
Gas
Gültigkeit
22.12.2025 bis 22.12.2035
Effizienzklasse
C
Endenergieverbrauch
125,00 kWh/(m²·a)
Weitere Energiedaten
Energieträger
Gas
Heizungsart
Zentralheizung
Details
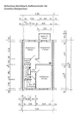
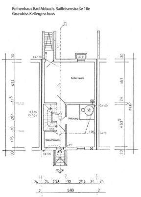
Objektbeschreibung
Das im Jahr 1972 errichtete Wohnhaus überzeugt durch seine solide Grundsubstanz in massiver Ziegelbauweise und bietet zugleich vielfältige Möglichkeiten zur individuellen Modernisierung und Gestaltung. Der offene Wohn-/Ess-/Küchenbereich im Erdgeschoss, drei Zimmer im Obergeschoss sowie ein großzügiges Studio im Dachgeschoss...
Ausstattung
Auf den Kaufpreis ist eine Maklergebühr in Höhe von 3% zzgl. 19% MwSt. = 3,57% fällig.
Alle Angaben stammen vom Verkäufer. Somit keine Haftungsübernahme.
Besichtigungen sind jederzeit mit Absprache von Immobilien-Zirngibl möglich.
Weitere Informationen
Grundstück: 180 qm Wohnfläche: 118 qm Nutzfläche: 45 qm
Anbieter der Immobilie
Zirngibl Immobilien
Edelweißstraße 3, 81541 München

Online-ID: 2mfp35t
Referenznummer: 887
Finde Angebote wie dieses
Hier geht es zu unserem Impressum, den Allgemeinen Geschäftsbedingungen, den Hinweisen zum Datenschutz und nutzungsbasierter Online-Werbung.