
CBRE GmbH
Frau Tabea Kurz
+49 ···
Nr. anzeigenPreise & Kosten
Provision für Mieter
provisionsfrei
Warum sehe ich diese Anzeige? – Du siehst diese Anzeige basierend auf Ihrer Navigation auf unserer Website und den Suchkriterien, die du verwendet hast.
Lage
Das moderne Bürogebäude B19 befindet sich im Gewerbegebiet "Am Wallgraben" in Stuttgart Vaihingen-Möhringen. Ein bedeutender Bürostandort im Süden der Landeshauptstadt Stuttgart, welcher in den vergangenen Jahren stetig gewachsen ist und sich zu einem etablierten und bedeutenden Wirtschafts- und Wissenschaftsstandort...
Büro-/Praxisfläche
Kategorie
Bürogebäude
Baujahr
2001
Geschoss
Erdgeschoss
Energie & Heizung
Warum sehe ich diese Anzeige? – Du siehst diese Anzeige basierend auf Ihrer Navigation auf unserer Website und den Suchkriterien, die du verwendet hast.
Wärme
Strom
Energieausweistyp
Verbrauchsausweis
Gebäudetyp
Nicht-Wohngebäude
Wesentliche Energieträger
GAS
Gültigkeit
seit 12.03.2024
Endenergieverbrauch (Wärme)
95,00 kWh/(m²·a)
Endenergieverbrauch (Strom)
24,00 kWh/(m²·a)
Details
Objektbeschreibung
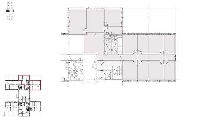
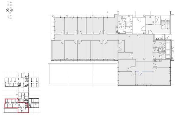
Das moderne Bürogebäude B19 verfügt derzeit über 4 kurzfristig verfügbare Mieteinheiten im 1. und 4. Obergeschoss. Ab Januar 2026 kommen noch weitere attraktive Büroflächen im 4. und 5. Obergeschoss hinzu. Die im 1. Obergeschoss im linken Bauteil befindlichen, vakanten Flächen können sowohl einzeln als auch zusammen...
Ausstattung
BELÜFTUNG/KLIMATISIERUNG
Heizkonvektoren, Klima-Splitgerät(e), mechanische Be-/Entlüftung, öffenbare Fenster, öffenbare, bodentiefe Fenster
SONNENSCHUTZ
außenliegender, elektrischer Sonnenschutz
EDV-VERKABELUNG
Bodentanks, CAT-5/6-Verkabelung
BODENBELAG
nach Abstimmung...
Anbieter der Immobilie
CBRE GmbH
Lautenschlagerstraße 23, 70173 Stuttgart

Online-ID: 2mfs75k
Referenznummer: 122893@13@0@232417
Finde Angebote wie dieses
Hier geht es zu unserem Impressum, den Allgemeinen Geschäftsbedingungen, den Hinweisen zum Datenschutz und nutzungsbasierter Online-Werbung.