
Herzel Immobilien e.U.
+43 ···
Nr. anzeigenPreise & Kosten
Provision für Käufer
3% des Kaufpreises zzgl. 20% USt.
Die Wohnung
Wohnungslage
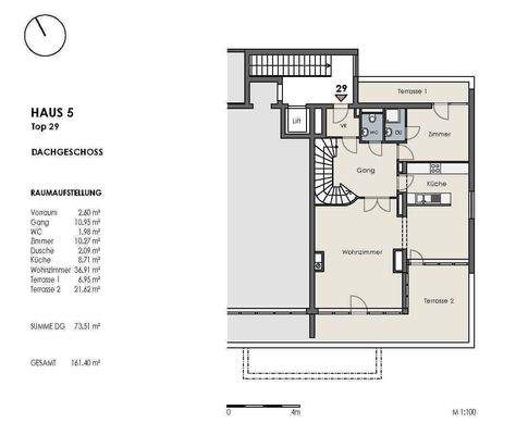
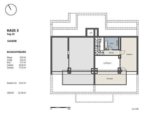
1. Geschoss (Dachgeschoss)
Bezug
Ab sofort
Wohnanlage
Energie & Heizung
Warum sehe ich diese Anzeige? – Du siehst diese Anzeige basierend auf Ihrer Navigation auf unserer Website und den Suchkriterien, die du verwendet hast.
Heizwärmebedarf (HWB)
224,10 kWh/(m²·a)
Gesamtenergieeffizienz (fGEE)
1,97
Weitere Energiedaten
Heizungsart
Zentralheizung
Details
Objektbeschreibung
_1190! Exklusive 5-Zimmer DG-Maisonette mit 3 Terrassen, Galerie + Tiefgaragenplatz! ERSTBEZUG NACH SANIERUNG! _
Auf den ehemaligen "Wien-Film Gründen" in Sievering im 19. Wiener Gemeindebezirk direkt auf der Sieveringer Straße, gelangt eine _sehr_ _schöne, generalsanierte und voll klimatisierte 5-Zimmer...
Weitere Informationen
Stichworte
Tiefgarage vorhanden, Nutzfläche: 160,10 m², Anzahl der Badezimmer: 3, Anzahl der separaten WCs: 3, Anzahl Terrassen: 3, Balkon-Terrassen-Fläche: 46,29 m², Bundesland: Wien
Anbieter der Immobilie
Online-ID: 2mftb5d
Referenznummer: OBGC20251119111259679738effdc7b
Finde Angebote wie dieses
Günstige Immobilienfinanzierung einfach online berechnen
Persönliches Angebot berechnenWarum sehe ich diese Werbung? – Du siehst diese Werbung basierend auf Deiner Navigation auf unserer Website und der von Dir verwendeten Suchkriterien.
Diese Werbung wird bezahlt von durchblicker
Werbung melden
Hier geht es zu unserem Impressum, den Allgemeinen Geschäftsbedingungen, den Hinweisen zum Datenschutz und nutzungsbasierter Online-Werbung.