FALC Immobilien Saarbrücken-Ost

Herr Christoph Weisang

Zweifamilienhaus mit Halle, Werkstatt und Garagen

€ 329.000
Kaufpreis
205 m²
Wohnfläche ca.
8
Zimmer
955 m²
Grundstücksfl. ca.

Der Anbieter dieses Objekts hat gegenüber der AVIV Germany GmbH als Betreiber dieses Online-Marktplatzes erklärt, nicht als Unternehmer im Sinne des § 1 KSchG zu handeln. Die im Verbraucherschutzrecht der Union verankerten Verbraucherrechte (insbesondere Informationspflichten und Rücktritts- bzw. Widerrufsrechte) finden auf den Vertrag zwischen dem Anbieter des Objekts und Ihnen (dem Interessenten) keine Anwendung.

Gewerblicher Anbieter

Der Anbieter dieses Objekts hat gegenüber der AVIV Germany GmbH als Betreiber dieses Online-Marktplatzes erklärt, als Unternehmer im Sinne des § 1 KSchG zu handeln.

AdresseStraße nicht freigegeben
66399 Mandelbachtal 
(Ormesheim)
Auf Karte ansehen

Preise & Kosten

Kaufpreis € 329.000

Provision für Käufer

3,00 inkl. gestzl. MwSt

Lage

Die Immobilie befindet sich in einer ruhigen und naturnahen Umgebung im charmanten Mandelbachtal. Die Region ist geprägt von einer idyllischen Landschaft, die sich hervorragend für Spaziergänge und Outdoor-Aktivitäten eignet. Die Nähe zu mehreren Parks, wie etwa einem in ca. 2,5 km Entfernung, bietet zusätzliche Möglichkeiten...

Mehr anzeigen

Das Haus

Kategorie

Mehrfamilienhaus

Baujahr

1906

Bezug

nach Absprache

  • Zustand: gepflegt
  • voll unterkellert
  • Terrasse, Garten, Balkon
  • Bad mit Wanne und Dusche
  • Einbauküche
  • Böden: Holzdielen, Fliesenboden, Kunststoffboden, Laminat

Energie & Heizung

Weitere Energiedaten

Energieträger

Öl

Heizungsart

Zentralheizung

Details

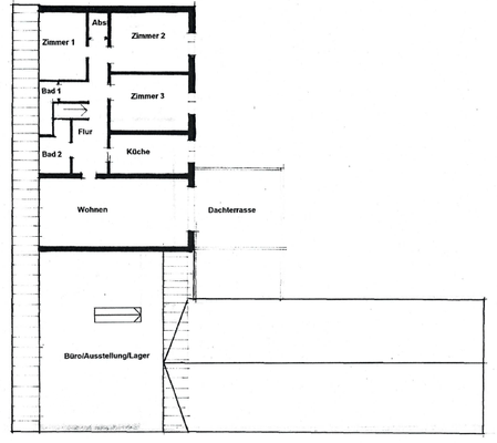
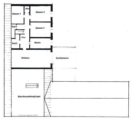
Objektbeschreibung

Dieses Zweifamilienhaus aus dem Jahr 1906 steht auf einem 955 m² großen Grundstück und bietet vielfältige Möglichkeiten für Wohnen, Arbeiten und Hobby. Zum Ensemble gehören ein Wohnhaus, eine Werkstatt (ehemals als Schreinerei genutzt), ein Anbau (Bj. 1980) sowie eine Halle (Bj. 1972) mit eigener Zufahrt.

Das Wohnhaus...

Mehr anzeigen

Ausstattung

Modernisierungen:
1975 Renovierung EG
1980 Bodenbeläge EG
1998 Renovierung DG
1998 Elektroinstallation
1998 Keller Außenwände
1998 Ölheizung DG
1998 Innenausbau (Büro) Werkstatt
1998 Anlage für Solarthermie
2012 Neuer Warmwasserspeicher (295 L)

Weitere Informationen

Sonstiges
Wir bieten Ihnen eine kostenlose 24/7-Hotline unter der Rufnummer 0800-6460646, über die Sie uns jederzeit erreichen können. Wenn Sie Interesse an der Immobilie haben, fordern Sie gerne das ausführliche Exposé an, das Ihnen in der Regel kurzfristig und automatisch zugesandt wird. Sollten Sie eine Besichtigung...

Mehr anzeigen

Anbieter der Immobilie

Partner

FALC Immobilien Saarbrücken-Ost

Cecilienstr. 16, 66111 Saarbrücken

user

Herr Christoph Weisang

Dein Ansprechpartner

Anbieter-Website Anbieter-Profil Anbieter-Impressum

Online-ID: 2mftj5l

Referenznummer: FALC-ChrW-78582

Finde Angebote wie dieses

imageimageimage

Hier geht es zu unserem Impressum, den Allgemeinen Geschäftsbedingungen, den Hinweisen zum Datenschutz und nutzungsbasierter Online-Werbung.