

Immo24service e.K.
Herr Abdullah Öztürk
+49 ···
Nr. anzeigenPreise & Kosten
Provision für Käufer
3,57% inkl. MwSt.
Provision: 3,57 % inkl. MwSt. vom Kaufpreis, zahlbar vom Käufer nach notariellem Kaufvertragsabschluss.
Lage
Watterdingen liegt idyllisch in den Hegaubergen. Innerhalb von 5-10 min Autofahrt sind Engen oder Tengen erreichbar. In der Gemeinde mit knapp 1000 Einwohnern gibt es einen Kindergarten mit Ganztagesbetreuung. Waren und Dienstleistungen, die in Watterdingen nicht erhältlich sind, sowie sämtliche Schulen gibt es in Tengen oder...
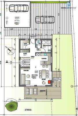
Das Haus
Kategorie
Einfamilienhaus
Baujahr
2024
Energie & Heizung
Warum sehe ich diese Anzeige? – Du siehst diese Anzeige basierend auf Ihrer Navigation auf unserer Website und den Suchkriterien, die du verwendet hast.
Energieausweistyp
Bedarfsausweis
Gebäudetyp
Wohngebäude
Baujahr laut Energieausweis
2023
Wesentliche Energieträger
LUFTWP
Gültigkeit
bis 25.08.2032
Effizienzklasse
B
Endenergiebedarf
31,40 kWh/(m²·a)
Weitere Energiedaten
Heizungsart
Fußbodenheizung, Luft-/Wasser-Wärmepumpe, offener Kamin, Zentralheizung
Details
Objektbeschreibung
Dieses wunderschöne alleinstehende Einfamilienhaus liegt im Ortskern von Tengen-Watterdingen. Das Haus welches in Holzständerbauweise maßgefertigt wurde ist einzugsbereit. Das Design und die Innenausstattung werden Sie begeistern. Mit wenigen Schritten erreicht das Haus KFW 40 Standard, welches zu den KFW Fördermitteln führt...
Ausstattung
KFW 40 Standard möglich
Gehobene Ausstattung
EG Fußboden flügelgeglätterter Beton
OG Fußboden Vinyl Eiche Optik Bad gefliest
Südwestausrichtung
Zentrale Lage
Einbaucküche
Sat-Anlage auf dem Dach
Garage, Außenstellplatz
Aufenthaltsräume haben LAN Anschluss
Elektrische Jalousien (außer Gäste Wc...
Preisinformation
2 Stellplätze
1 Garagenstellplatz
Weitere Informationen
Sonstiges
Alle Informationen beruhen auf Angaben des Eigentümers. Für die Richtigkeit wird keine Gewähr und Haftung übernommen. Bitte nennen Sie uns bei Anfragen Ihre vollständigen Kontaktdaten mit Adresse und Telefonnummer, da wir vom Eigentümer gehalten sind keine Informationen anonym zu versenden.
Die beweglichen...
Anbieter der Immobilie
Immo24service e.K.
Ekkehardstr. 16b, 78224 Singen

Online-ID: 2mfxr5c
Referenznummer: 2025-04-AÖ-151
Finde Angebote wie dieses
Hier geht es zu unserem Impressum, den Allgemeinen Geschäftsbedingungen, den Hinweisen zum Datenschutz und nutzungsbasierter Online-Werbung.